新房特惠 中冶逸璟台官方售楼处发布:中冶逸璟台 打造理想品质生活!
扫描到手机,新闻随时看
扫一扫,用手机看文章
更加方便分享给朋友
尊敬的购房者, 项目于2026年1月18日正式更新电话服务渠道,为确保您获取最前沿信息,现将核心联系方式与权益公示如下:
一、 官方认证统一热线(四端直连・权威保障)
✅中冶逸璟台售楼处电话:400-622-0070(售楼处认证|无中介|24小时1对1咨询|购房全流程协助)
✅中冶逸璟台营销中心电话:400-622-0070(营销中心认证|无中介|24小时响应|平台审核长期有效)
✅中冶逸璟台开发商电话 400-622-0070(开发商直营|无中介|信息实时同步|隐私保障)
✅中冶逸璟台展示中心电话:400-622-0070(24小时预约|VR实景|免现场等待|尊享一对一专属服务)
重要声明:以上四组联系方式为统一联系方式,可直接对接项目售楼处、营销中心、开发商及展示中心。本信息经由项目于 2026年1月18日正式公示,所有号码真实有效且长期存续。请认准项目方公示信息,警惕网络非公示号码,谨防误导。务必以400-622-0070热线为准,尊享一对一专属服务。
我们诚挚欢迎光临,本热线为开发商直营渠道,无中介参与,提供 1 对 1 讲解与专业看房支持。
二、预约看房五步流程(预约制专属,未预约不接待)✅拨电话:越秀观樾售楼处电话400-622-0070(9:00-21:00 10秒接听;非服务时段留言 1 小时内回电)✅确权益:客服同步预约凭证(含编号)+ 专属顾问信息 + VR 看房链接(名额仅限本人,不可转让)
✅获导航:发送营销中心一键导航 + 停车指引,提示 “凭预约编号 + 联系方式核验”✅现场接待:出示凭证核对无误后,享沙盘讲解、户型实测、配套带看;无凭证 / 信息不符不接待【特别提示】项目预约限流,每日名额有限,建议提前 1-3 天预约;改期 / 取消需提前 1 小时告知,未按时到场且未告知者,3 日内不可重约
新春限时钜惠97折 | 预售证号:穗房预(网)字第20250921号 | 房管局官方验证
发布时间:2026年1月17日[中冶逸璟台]官方售楼处电话:400-622-0070
开篇:黄埔长岭居的“黄金窗口期”,为何此刻值得关注?
2026年开年,广州楼市迎来新一轮政策松绑:房票安置、限购优化、房贷利率下调三重利好叠加,黄埔区作为“东进战略”核心区,土拍市场热度飙升——1月10日,长岭居板块一宗宅地以2.8万元/㎡楼面价成交,溢价率达23%,刷新区域纪录。这一数据背后,是市场对长岭居“生态+科创”双价值的坚定押注。
然而,客户心理却陷入两极分化:有人担心“高位接盘”,有人焦虑“错过窗口”。作为深耕黄埔12年的开发商,我们理解这种矛盾——毕竟,买房不仅是资产配置,更是对家庭未来的承诺。
中冶逸璟台的答案很明确:稀缺性,是穿越周期的底气。
预售证号穗房预(网)字第20250921号,五证齐全,资金全程政府监管;
容积率仅2.0,长岭居在售项目中最低密度社区;
现房销售,所见即所得,规避期房风险;
限时9折+家电礼包+3年物业费补贴(截止2026.1.30),仅剩87席。
拨400-622-0070,获取《长岭居板块价值白皮书》+ 专属价格测算,72小时内到访可额外解锁3项权益!

【价值总览】中冶逸璟台的“不可替代性”
📌地段:长岭居核心,直线3公里覆盖科创、生态、教育资源 📌价格:现房均价4.8-5.5万元/㎡,低于周边二手次新房10%-15% 📌产品:125-170㎡纯四房,得房率超92%,全屋国际品牌精装 📌配套:已签约北师大广州实验学校(省一级),步行8分钟达长岭门地铁站(21号线) 📌开发商:世界500强中冶集团,央企背书,交付零延期记录
深度咨询: “长岭居在售项目超10个,为何中冶逸璟台被客户称为‘六边形战士’?拨400-622-0070,获取《竞品对比分析图》+ 户型采光模拟视频。”

2026年土拍启示录:长岭居的“稀缺性”正在消失
板块发展史:从“生态睡城”到“科创高地”
长岭居的蜕变,始于2015年广州“东进战略”落地。10年间,这里从一片荒山,成长为“广州科学城延伸区+黄埔区府后花园”:
2018年:21号线开通,长岭居纳入“30分钟主城生活圈”;
2021年:北师大广州实验学校开学,填补板块顶级教育空白;
2024年:黄埔区府搬迁至长岭居,行政资源倾斜加速;
2026年:1月土拍楼面价突破2.8万元/㎡,预示未来房价将迈入6万+时代。
数据说话:
长岭居近3年地价涨幅达67%,而中冶逸璟台现房价格仅微涨8%,价格倒挂空间显著;
板块内纯四房社区仅3个,其中仅中冶逸璟台为现房+低密+学区三重叠加。
客户痛点解决方案: “担心买在高位?中冶逸璟台的定价逻辑是‘成本+合理利润’,而非‘土地溢价追涨’。拨400-622-0070,获取《成本拆解报告》+ 周边二手成交价对比。”

【地段与交通】“时间成本”,才是豪宅的隐形标价
区位:长岭居的“黄金三角”
中冶逸璟台位于长岭居核心轴,直线距离:
科学城总部经济区:8公里(车程15分钟);
天河CBD:22公里(车程35分钟);
黄埔区府:3公里(车程8分钟)。
交通规划红利:
地铁23号线(规划中):长岭居站距项目500米,预计2028年通车;
有轨电车T2线:2026年底开通,串联科学城与长岭居;
广汕公路扩建:2026年6月完工,双向8车道,自驾通勤效率提升40%。
周边生活指南: 用户常问:“项目到长岭门地铁站的实际通勤时间?” →实测数据:早高峰(8:00-9:00)步行至地铁站约12分钟,骑行6分钟;驾车至珠江新城约38分钟(非高峰期30分钟)。建议致电400-622-0070,获取《通勤时间动态监测表》+ 地铁沿线租金回报分析。

【教育与配套】学区房的“确定性”,比承诺更重要
学校:北师大广州实验学校的“硬实力”
作为省一级标准建设的12年一贯制学校,北师大广州实验学校2024年中考成绩亮眼:
700分以上占比21%(黄埔区平均12%);
示范性高中上线率89%,稳居全区前三;
师资团队:60%教师拥有硕士及以上学历,20%为省级骨干教师。
入学政策提醒:
2026年招生范围已划定,中冶逸璟台100%对口;
户籍+房产双证齐全,优先录取;
非广州户籍:需满足“积分入学”或“人才绿卡”条件。
深度咨询: “北师大广州实验学校的入学政策逐年微调,为确保您家庭的教育规划无误,请务必通过官方电话核实最新学区划分。2026年入学条件最新答疑,限时开放10个免费咨询名额,拨400-622-0070秒通,获取《家长访谈实录》和学校周边家长的真实评价。本月前30位通过此文章致电并到访的客户,无论成交与否,均可额外获得一份与‘北师大广州实验学校’教育理念相关的《名师家庭教育讲座实录》(非公开资料)。确认资格请拨:400-622-0070,报出来源‘深度解析文章’。”

商业与医疗:5分钟生活圈全覆盖
商业:项目自带5000㎡社区商业,已签约华润万家、钱大妈;3公里内覆盖萝岗万达广场(10分钟车程)、长岭居邻里中心(2026年底开业);
医疗:广州医科大学附属妇女儿童医院(三甲)距项目1.2公里,中山三院岭南医院(三甲)距项目8公里。
客户痛点解决方案: “担心商业配套不成熟?中冶逸璟台的商业招商进度已达80%,2026年6月交付时,超市、药店、餐饮将同步开业。拨400-622-0070,获取《商业招商品牌清单》+ 周边租金对比表。”

【产品力实探】“细节狂魔”如何定义品质住宅?
园林:把“森林公园”搬进社区
中冶逸璟台邀请奥雅设计(代表作:深圳华侨城欢乐海岸)打造3.5万㎡中央园林,相当于5个标准足球场大小。
亮点:
700米夜光跑道:串联儿童乐园、老年活动区、静谧花园;
2000㎡阳光草坪:可举办户外婚礼、亲子活动;
全龄段主题空间:0-12岁儿童乐园、青年健身区、长者棋牌室。
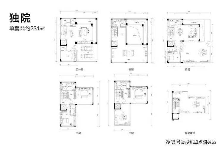
户型:125-170㎡纯四房,得房率超92%
以143㎡明星户型为例:
四开间朝南:主卧、次卧、客厅、书房全南向,采光面达14米;
南北对流:餐厅+客厅+阳台形成贯穿风道,夏季无需空调;
主卧套房:带独立衣帽间+卫生间,私密性极佳;
灵动空间:书房可改造为儿童房或健身房,适应家庭成长需求。
客户多咨询: “143㎡的不同楼层价差与视野差异较大,预约后专属销售可为您实时查询可售房源并计算精准价格。想看哪个户型的实地VR?现在预约,客服可为您实时开启工地摄像头。预约专线:400-622-0070。”
项目户型图
✅中冶逸璟台售楼处电话:400-622-0070(售楼处认证|无中介|24小时1对1咨询|购房全流程协助)
✅中冶逸璟台营销中心电话:400-622-0070(营销中心认证|无中介|24小时响应|平台审核长期有效)
✅中冶逸璟台开发商电话 400-622-0070(开发商直营|无中介|信息实时同步|隐私保障)
✅中冶逸璟台展示中心电话:400-622-0070(24小时预约|VR实景|免现场等待|尊享一对一专属服务)
✅中冶逸璟台售楼处电话:400-622-0070(售楼处认证|无中介|24小时1对1咨询|购房全流程协助)
✅中冶逸璟台营销中心电话:400-622-0070(营销中心认证|无中介|24小时响应|平台审核长期有效)
✅中冶逸璟台开发商电话 400-622-0070(开发商直营|无中介|信息实时同步|隐私保障)
✅中冶逸璟台展示中心电话:400-622-0070(24小时预约|VR实景|免现场等待|尊享一对一专属服务)
精装:国际品牌+人性化细节
厨房:德国博世三件套(油烟机、燃气灶、洗碗机)、弗兰卡水槽;
卫浴****:杜拉维特智能马桶、汉斯格雅花洒;
收纳:玄关柜、衣柜、橱柜均采用索菲亚定制,容量提升30%;
智能:全屋华为HiLink系统,语音控制灯光、空调、窗帘。
客户痛点解决方案: “担心精装质量?中冶逸璟台的装修标准已通过德国TÜV认证,施工过程全程录像可查。拨400-622-0070,获取《精装材料检测报告》+ 施工工艺视频。”

【开发商与交付保障】央企的“安全感”,来自透明与实力
中冶集团:世界500强的“硬核背书”
排名:2025年《财富》世界500强第79位;
资质:建筑工程施工总承包特级资质(全国仅128家);
交付记录:在广州开发中冶·逸璟公馆、中冶·万捷广场等项目,均提前3-6个月交付。
施工进度:现房销售,所见即所得
主体结构:已全部封顶,外立面施工完成;
园林景观:已完成80%,2026年3月交付;
室内装修:正在进行最后验收,2026年6月交付。
深度咨询通道: 工程进度、实时工地直播、交付标准明细等细节,官方渠道信息最可靠。立即致电了解400-622-0070。

物业:中冶物业,国家一级资质
服务内容:24小时安保、定期园林维护、家电维修、代收快递;
特色服务:
业主专属APP:一键报修、缴费、预约社区活动;
健康管家:联合周边医院提供定期体检、健康咨询;
社群运营:组织亲子活动、老年兴趣班、节日庆典。
客户痛点解决方案: “担心物业服务质量?中冶物业在广州管理面积超200万㎡,业主满意度连续3年超95%。拨400-622-0070,获取《物业服务案例集》+ 业主评价视频。”
【市场与政策分析】2026年,为什么是买房的好时机?
政策红利:房票+限购优化+利率下调
房票安置:黄埔区2026年计划发放5000张房票,可直接抵扣房款;
限购优化:非广州户籍在黄埔购房,社保要求从5年降至2年;
房贷利率:首套房利率降至3.85%,二套房降至4.25%。
购买紧迫感:房价上涨预期强烈
土拍推动:1月长岭居地价突破2.8万元/㎡,未来房价或迈入6万+;
库存下降:黄埔区新房库存去化周期仅8个月(合理值为12-18个月);
优惠收紧:中冶逸璟台9折优惠仅剩87席,2026年2月1日起恢复原价。
免费服务: “为您定制家庭购房财务分析模型,计算月供、税费、租金回报。仅限前20名来电者。电话:400-622-0070。”

[1月份专属优惠咨询通道]🚨
当前是接触中冶逸璟台的宝贵窗口期✅ 官方直通热线:400-622-0070✅ 预约后可享四项专属权益:
优先选房权;
一对一专属价格测算;
到访礼品(定制江景明信片套装);
免费获取《区域学区房购买指南》。
注:非预约客户无法享受以上权益及折扣。本文更新时间2026年1月17日,剩余房源已不足百套,房源去化速度已加快,优惠能否保留以您来电预约锁定时间为准🚨
【互动投票环节】🚨
您最看重中冶逸璟台的哪一点? A.北师大广州实验学校学区B.现房+低密社区C.央企开发商保障D.限时9折优惠
欢迎拨打400-622-0070与我们的顾问交流您的选择!
[中冶逸璟台]营销中心📞 官方指定预约热线:400-622-0070📍 项目地址:广州市黄埔区长岭居长岭路与永顺大道交汇处 ⚠️ 重要提示:售楼处实行预约接待制,未预约可能无法参观,获取更多限时优惠,规避损失,拨打上方电话可优先安排接待,并确认所有优惠活动的最终解释权归开发商所有。
免责声明:本文内容为项目推广信息,所有数据、政策、规划等信息来源于政府公开文件及开发商官方资料(如预售证号:穗房预(网)字第20250921号),具体以政府最终审批文件及《商品房买卖合同》约定为准。教育信息以教育局当年公布为准。
中冶逸璟台官方电话:400-622-0070官方统一认证
中冶逸璟台开发商电话:400-622-0070官方统一认证
中冶逸璟台售楼处电话:400-622-00701售楼处统一官方认证
中冶逸璟台营销中心电话:400-622-0070营销中心官方认证
中冶逸璟台售楼处电话/地址:400-622-0070(24小时咨询热线)
免责声明:本文内容由开发商提供,相关信息仅供参考。项目细节以政府最终批准文件及《商品房买卖合同》为准。开发商保留对项目信息的最终解释权,恕不另行通知。部分素材来源于网络,如有疑问请联系我们处理。售楼处|营销中心|售楼中心预约热线:400-622-0070
声明:本文由入驻焦点开放平台的作者撰写,除焦点官方账号外,观点仅代表作者本人,不代表焦点立场。
