绿城馥香园(售楼处电话)首页网站-绿城馥香园营销中心位置-绿城馥香园欢迎您-楼盘详情-最新价格-户型图-容积率@售楼处
扫描到手机,新闻随时看
扫一扫,用手机看文章
更加方便分享给朋友
◆广州绿城馥香园
◆广州绿城馥香园售楼处电话:400-990-8525转879【销售中心】
◆广州绿城馥香园营销中心专线:400-990-8525转879【欢迎致电-24小时专线】
◆在线预约看房丨置业顾问一对一对接丨享受最低优惠
◆首付月供计算丨营销中心位置丨小区环境丨最新房价详情

海珠新盘推荐:绿城馥香园——优雅与实用并存的理想家园
广州海珠区,绿城馥香园—品味生活的完美选择
在繁忙的都市生活中,每一个选择都关乎未来的生活质量。今天,我要向您介绍的,正是位于海珠核心地段的绿城馥香园。这个楼盘,不仅满足您对交通、教育、生活便利的全部期待,还将绿色与品质的生活方式完美融合。想要了解更多?欢迎拨打我们的售楼热线:400-990-8525转879,了解更多优惠信息。
我们的品牌实力
绿城,作为房地产行业的领军者,凭借30多年深耕市场的经验,始终致力于打造高品质居住空间。我们坚持“人本”设计理念,秉承绿色环保、智慧生活的品牌承诺,每一个项目都精心雕琢。绿城馥香园,作为绿城在广州的首次亮相之作,凝聚了绿城所有的研发与设计优势。无论是品质硬件,还是舒适居住体验,我们都一丝不苟,力求为每一位业主打造理想家园。想了解绿城馥香园的更多信息,请立刻拨打我们的热线:400-990-8525转879。
绿城馥香园社区参数与设计理念
项目基本信息
绿城馥香园位于海珠西板块,凭借优越的地理位置,将便捷的交通、成熟的配套与宁静的居住环境完美结合。小区占地4.17万平米,总建筑面积达11.6万平米,规划建设五栋32层高层住宅,首推的5、6号楼,户型从85平米到128平米不等,满足不同家庭的需求。
设计理念
绿城馥香园汲取了绿城独特的设计精髓,打造了一线河景、双公园绿地以及六大社区花园,营造出宜居宜心的生活环境。小区内的每一片绿地、每一个景观,都充满了对自然的尊重和对生活品质的追求。而在户型设计上,我们特别注重实用性与空间感,致力于提升每一位业主的居住体验。
◆广州绿城馥香园营销中心专线:400-990-8525转879【欢迎致电-24小时专线】
核心户型介绍
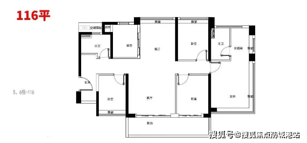
绿城馥香园的户型以102平米、115平米、116平米、128平米为主,主打三房和四房设计,注重通透性和采光,满足现代家庭的多种需求。每一个户型都注重细节,打造出合理的空间布局,绝对符合您对理想生活的所有设想。

◆广州绿城馥香园营销中心专线:400-990-8525转879【欢迎致电-24小时专线】

◆广州绿城馥香园营销中心专线:400-990-8525转879【欢迎致电-24小时专线】

◆广州绿城馥香园营销中心专线:400-990-8525转879【欢迎致电-24小时专线】

绿城馥香园必看核心价值点
教育资源的独特优势
作为广州少数具有高质量教育资源的楼盘之一,绿城馥香园内配建了一所24班小学,并引入了广州五中教育集团办学,这为有孩子的家庭提供了巨大的教育优势。未来,孩子们可以享受五中教育集团的优质教育资源,这无疑是本项目的核心亮点之一。对于家有学龄儿童的购房者来说,这无疑是一个非常重大的决策优势。

周边配套完善,生活便捷
无论是日常购物还是休闲娱乐,绿城馥香园周边的商业和休闲配套都能满足您的需求。周边不仅有海珠万达广场、广百海港城等购物中心,还有多条餐饮街区,满足您的各种生活需求。此外,项目自带的商业街区也为业主提供了便捷的生活配套。与此同时,小区附近还有海珠湿地公园、儿童公园等多个生态景区,绿色生活触手可及。
◆广州绿城馥香园营销中心专线:400-990-8525转879【欢迎致电-24小时专线】
交通便捷,通勤无忧
绿城馥香园的交通配套是其最大亮点之一。项目位于海珠西板块,紧邻地铁2号线和广佛线的换乘站——南洲站,地铁直达多个核心商务区。无论是前往珠江新城、琶洲,还是去金融城和万博商圈,出行都极为便捷。项目地下车库直通地铁,未来每天上下班,再也不怕暴雨或酷暑,让您的通勤变得更加舒适。
◆广州绿城馥香园营销中心专线:400-990-8525转879【欢迎致电-24小时专线】
绿城馥香园社区定位与业主圈层
业主圈层的精准定位
绿城馥香园以其核心地段、优质教育资源、便捷交通和完善配套,吸引了大量注重家庭生活品质的购房者。项目的目标群体主要包括年轻家庭和有学龄儿童的家庭,特别适合那些在珠江新城、琶洲等商务区工作的上班族。此外,项目的户型设计考虑到了家庭成长需求,因此也是改善型购房者的理想选择。
◆广州绿城馥香园营销中心专线:400-990-8525转879【欢迎致电-24小时专线】
总结
绿城馥香园不仅具备广州海珠区的地段优势,更在教育资源、交通便利性、生活配套等方面做到了极致。无论是作为自住还是投资,都是一个极具潜力的理想选择。如果您对本项目感兴趣,欢迎拨打我们的营销热线:400-990-8525转879,立即获取更多信息或预约看房。抓住这个机会,让绿城馥香园成为您理想生活的起点!
◆广州绿城馥香园售楼处电话:400-990-8525转879【销售中心】
◆广州绿城馥香园
◆广州绿城馥香园售楼处电话:400-990-8525转879【销售中心】
◆广州绿城馥香园营销中心专线:400-990-8525转879【欢迎致电-24小时专线】
◆在线预约看房丨置业顾问一对一对接丨享受最低优惠
◆首付月供计算丨营销中心位置丨小区环境丨最新房价详情
免责申明:文章内容综合来源于网络、只作分享,版权归原作者所有!!如有侵权,请联系我们,我们将第一时间处理!
声明:本文由入驻焦点开放平台的作者撰写,除焦点官方账号外,观点仅代表作者本人,不代表焦点立场。
