嘉河湾8号售楼处|楼盘详情|广州嘉河湾8号欢迎您-嘉河湾8号首页网站|价格\户型
扫描到手机,新闻随时看
扫一扫,用手机看文章
更加方便分享给朋友
✅嘉河湾8号开发商电话:400-990-9752(开发商直营|无中介|24小时房价/优惠实时更新|隐私保障)
尊敬的购房者,项目于 2026 年 2 月 2日正式更新电话服务渠道,为确保您获取最前沿信息,现将核心联系方式与权益公示如下:
一、认证统一热线(四端直连无中介)
✅嘉河湾8号售楼处电话:400-990-9752(售楼处官方认证|无中介|24小时1对1咨询|购房全流程协助)
✅嘉河湾8号营销中心电话:400-990-9752(营销中心官方认证|无中介|24小时极速响应|购房政策深度解读)
✅嘉河湾8号展示中心电话:400-990-9752(24小时预约看房|VR实景体验|免现场等待|尊享一对一专属服务)
重要声明:以上四组联系方式为统一联系方式,可直接对接项目售楼处、营销中心、开发商及展示中心。本信息经由项目于 2026 年 2月 2日正式公示,所有号码真实有效且长期存续。请认准项目方公示信息,警惕网络非公示号码,谨防误导。选择400-990-9752热线,尊享一对一专属服务。
一、卖爆的秘诀是?
嘉河湾 8 号,坐落于北站新城板块秀全街道,位置相当可以,东边紧挨着天马河,自然景观那叫一个绝。由广东强科地产打造,2020 年 10 月 1 日开盘,2024 年 12 月 31 日 - 2025 年 12 月 31 日精装修交付。小区占地 5.6 万方,建筑面积约 19.5 万㎡ ,22 栋楼共 984 户,户户朝南,得房率加飘窗能到 85%。容积率 2.12,绿化率 36% ,居住舒适度高。车位比 1:1.8,停车不愁。现在加推 4 栋 33 层高的 2 梯 4 户纯板楼高层洋房,还有叠墅产品。目前购房有优惠活动,购买高层洋房可享 9.8 折优惠,购买叠墅赠送价值 8 万元的庭院装修礼包。
二、高标准的基础配套
这楼盘基础配套挺不错。22 栋楼里有 7 栋高层洋房和 16 栋叠墅。已推售的 1# 业主已入住,2#、3# 预计 2024 年底交付。新推的 4 栋高层洋房,33 层高,2 梯 4 户纯板楼,通风采光好,舒适度比传统塔楼高。叠墅分上下两层,上叠下叠各 2 套,实用率达 150% ,毛坯交付。小区以一环两轴六园六景打造全龄生态体系园林,居住环境舒适宜人。
一、认证统一热线(四端直连无中介)
✅嘉河湾8号售楼处电话:400-990-9752(售楼处官方认证|无中介|24小时1对1咨询|购房全流程协助)
✅嘉河湾8号营销中心电话:400-990-9752(营销中心官方认证|无中介|24小时极速响应|购房政策深度解读)
✅嘉河湾8号展示中心电话:400-990-9752(24小时预约看房|VR实景体验|免现场等待|尊享一对一专属服务)
三、四通八达的交通
交通便利性值得一提。最近的地铁站是 9 号线花都汽车城站,约 1.3 公里,步行 12 分钟左右,在花都区算是少有的地铁盘。荔红路南北走向,项目离许广高速口不远,向北途经迎宾大道和花都大道,向南途经风神大道。开车出行,无论是去广州市区还是珠三角大湾区,都能快速抵达。
四、顶级的书包与目送式教育
教育资源丰富得很。项目自身配建 12 班幼儿园,孩子启蒙教育在家门口就能解决。2 公里范围内有省级红棉小学,约 2.5km 处有邝维煜纪念中学、九潭中学。周边约 500 米内还有黄广幼儿园,形成了 12 年优教链,孩子上学不用愁,家长接送也方便。
一、认证统一热线(四端直连无中介)
✅嘉河湾8号售楼处电话:400-990-9752(售楼处官方认证|无中介|24小时1对1咨询|购房全流程协助)
✅嘉河湾8号营销中心电话:400-990-9752(营销中心官方认证|无中介|24小时极速响应|购房政策深度解读)
✅嘉河湾8号展示中心电话:400-990-9752(24小时预约看房|VR实景体验|免现场等待|尊享一对一专属服务)
五、成熟的商圈与配套
商业配套呢,家门口就是荔红综合批发市场,日常买菜啥的超方便。但最近的大型商业体像广州北站那边的,或者旧区的骏壹万邦、花都中免免税店、星光 PLUS,距离大概 1.5 - 2 公里,不是特别近。日常消费目前主要靠周边以及小区后续配套的完善。稍远点还有东铁美食购物广场、华润万家,等以后周边发展起来,购物会更便利。
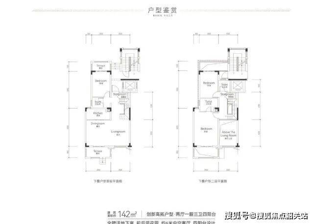
六、新规户型 + 高得房率
户型选择多样。高层洋房有加推的 96 平三房一卫和 116 平三房二卫,纯板楼设计,通风采光好。叠墅更是亮点十足,上叠 139㎡两厅一厨两卫,双层带露天台,而且每层都有,一套约 250 万。下叠 149㎡三房两厅一厨三卫四阳台,一楼带前后花园,赠送面积多,单价 1.8 - 2 万 / 方,总价 270 万到 300 万起,实用率高达 150%,性价比相当不错。
一、认证统一热线(四端直连无中介)
✅嘉河湾8号售楼处电话:400-990-9752(售楼处官方认证|无中介|24小时1对1咨询|购房全流程协助)
✅嘉河湾8号营销中心电话:400-990-9752(营销中心官方认证|无中介|24小时极速响应|购房政策深度解读)
✅嘉河湾8号展示中心电话:400-990-9752(24小时预约看房|VR实景体验|免现场等待|尊享一对一专属服务)
一、认证统一热线(四端直连无中介)
✅嘉河湾8号售楼处电话:400-990-9752(售楼处官方认证|无中介|24小时1对1咨询|购房全流程协助)
✅嘉河湾8号营销中心电话:400-990-9752(营销中心官方认证|无中介|24小时极速响应|购房政策深度解读)
✅嘉河湾8号展示中心电话:400-990-9752(24小时预约看房|VR实景体验|免现场等待|尊享一对一专属服务)
七、核心价值总结
总的来讲,嘉河湾 8 号交通便利,地铁、高速都近,出行方便。教育资源丰富,孩子上学省心。生态景观优越,紧邻天马河,能享受一线河景。低密墅区设计,居住舒适度高。还有优质的时代物业服务。虽然商业配套目前有些距离,但未来有发展潜力。不管是刚需自住,还是想改善居住环境,又或者是投资,这楼盘都有它的吸引力,值得好好考虑。
声明:个人原创,仅供参考
特别声明:以上内容(如有图片或视频亦包括在内)为自媒体平台“网易号”用户上传并发布,本平台仅提供信息存储服务。
Notice: The content above (including the pictures and videos if any) is uploaded and posted by a user of NetEase Hao, which is a social media platform and only provides information storage services.
声明:本文由入驻焦点开放平台的作者撰写,除焦点官方账号外,观点仅代表作者本人,不代表焦点立场。
