望德8号售楼处电话→望德8号售楼中心电话→望德8号楼盘百科→首页网站→楼盘详情→最新房价→24小时热线电话
扫描到手机,新闻随时看
扫一扫,用手机看文章
更加方便分享给朋友
望德8号项目核心联系方式(2026年1月12日官方最新发布✨)
重要提醒
1,预约制要求
因近期看房客户较多,望德8号项目采取预约制,过来售楼部参观需提前拨打400-6887-290进行线上预约,避免临时到访无法接待。
2,实地考察建议
若选择线下看房,需注意:非预约客户可能被安保拦截,建议提前1天通过望德8号售楼处预约电话400-6887-290确认行程。
✨✨望德8号售楼处电话:400-6887-290(工作日9:00-21:00,周末无休)❤🔥
✨✨望德8号营销中心电话:400-6887-290(可查询房源动态、活动详情)❤🔥
✨✨望德8号开发商电话:400-6887-290 开发商直线(解答项目规划、购房政策等问题)❤🔥
✅ 本项目暂不接受临时到访,过来参观样板房请记得提前来电预约!
✅ 项目将为您安排楼盘现场销售全程接待并讲解,给您更贴心的看房体验!

禅城奇槎现房发售!世茂望德8号:116万起三房,双学区+东平河景一步到位
在佛山楼市持续调整的当下,刚需家庭最关心的问题无非三点:价格是否友好?孩子上学是否方便?房子是不是看得见、摸得着?而位于禅城奇槎板块的世茂望德8号,正以“低总价现房+优质双学区+实景交付”的组合拳,成为不少年轻家庭安家禅城的首选。

一、基本信息:现房发售,安心置业有保障
世茂望德8号(曾用名:世茂望德公馆)由佛山市新纪元置业有限公司开发,世茂天成物业提供后续服务。项目总建筑面积约26万平方米,目前在售楼栋为A区8座及B区10座,均为现房或准现房状态——其中8座已于2025年6月正式交付,10座预计于2026年1月交付,购房者可实地看房、即买即办手续,极大降低期房交付风险。
值得一提的是,项目已取得合法预售许可,相关手续齐全,购房流程规范透明,为购房者提供坚实的权益保障。

✨✨望德8号售楼处电话:400-6887-290(工作日9:00-21:00,周末无休)❤🔥
✨✨望德8号营销中心电话:400-6887-290(可查询房源动态、活动详情)❤🔥
✨✨望德8号开发商电话:400-6887-290 开发商直线(解答项目规划、购房政策等问题)❤🔥
二、核心优势:低总价锁定双学区,现房即住省心省力
在当前佛山禅城新房普遍单价1.8万+/㎡的市场环境下,世茂望德8号主推的87㎡三房户型单价仅约1.3万元/㎡,总价116万起,堪称“价格堪比周边首付,却能一步到位解决12年义务教育”。
更关键的是,项目对口三龙湾小学+惠景中学,两校均属禅城区第一梯队。其中惠景中学是公认的公办初中佼佼者,升学成绩与口碑俱佳;三龙湾小学更是步行可达,真正实现“目送式上学”。此外,小区内配建的明珠幼儿园世茂分园已开园,从幼儿园到初中,教育链条完整闭环。
对于重视子女教育又预算有限的家庭来说,这样的配置实属难得。

三、区位交通:禅城东门户,广佛生活圈触手可及
世茂望德8号地处禅城、南海、顺德三区交汇的“金三角”地带,是佛山“三龙湾高端创新集聚区”的东大门,战略定位清晰,发展潜力可观。
目前,项目周边以自驾出行为主。通过魁奇路、三龙湾大道等城市主干道,可快速通达:
佛山新城(约15分钟车程)
千灯湖金融高新区(约20分钟)
广州南站(约30分钟)
经南大干线还可便捷连接番禺万博商圈
虽然现阶段地铁覆盖尚不完善——最近的地铁站需依赖公交接驳,但规划中的佛山地铁6号线已明确途经奇槎片区,未来轨道交通短板有望逐步补齐。对于日常以私家车通勤的禅城、桂城上班族而言,当前交通条件已足够实用。

✨✨望德8号售楼处电话:400-6887-290(工作日9:00-21:00,周末无休)❤🔥
✨✨望德8号营销中心电话:400-6887-290(可查询房源动态、活动详情)❤🔥
✨✨望德8号开发商电话:400-6887-290 开发商直线(解答项目规划、购房政策等问题)❤🔥
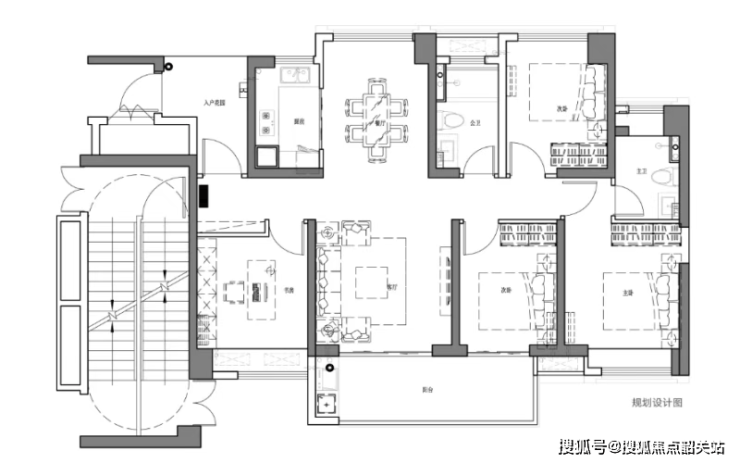
四、户型鉴赏:三款主力户型,满足不同家庭需求
项目目前在售产品均为毛坯交付,给予业主充分的装修自主权。主力户型包括87㎡三房、97㎡三房及117㎡四房,各具特色:
87㎡三房(北向)
总价门槛最低,适合首次置业的年轻家庭。户型带入户花园,实用率约75%-80%,但仅设一个卫生间,部分房间面积略紧凑。厨房位置较开放,后期可通过隔断优化布局。

97㎡三房(南向)
南北通透,配备双卫生间,空间分配更均衡,居住舒适度明显提升。需注意的是,部分楼栋临近奇龙大桥,低楼层可能存在轻微噪音,建议实地考察后选择。
117㎡四房(南向)
被视为项目“改善担当”,南北对流、四开间朝南,搭配大面宽观景阳台。高楼层单位可远眺东平河景与佛山体育中心,视野开阔,居住品质感更强。

✨✨望德8号售楼处电话:400-6887-290(工作日9:00-21:00,周末无休)❤🔥
✨✨望德8号营销中心电话:400-6887-290(可查询房源动态、活动详情)❤🔥
✨✨望德8号开发商电话:400-6887-290 开发商直线(解答项目规划、购房政策等问题)❤🔥
整体来看,户型设计兼顾功能性与性价比,尤其适合注重实用性的刚需及刚改家庭。

五、生活配套:生态资源突出,商业医疗渐趋完善
生态休闲方面,项目紧邻半月岛湿地公园——这座超大型滨水公园已成为周边居民晨跑、遛娃、野餐的热门目的地。推窗见绿、下楼入园的生活方式,极大提升了日常幸福感。
商业配套目前以社区底商和奇槎菜市场为主,满足基本生活所需。重大利好在于:禅城山姆会员店已于2025年10月30日完成主体结构封顶,距离项目仅约1公里,预计2026年正式开业。届时,区域高端商业能级将实现质的飞跃。

✨✨望德8号售楼处电话:400-6887-290(工作日9:00-21:00,周末无休)❤🔥
✨✨望德8号营销中心电话:400-6887-290(可查询房源动态、活动详情)❤🔥
✨✨望德8号开发商电话:400-6887-290 开发商直线(解答项目规划、购房政策等问题)❤🔥
医疗资源方面,附近有石肯医院提供基础诊疗服务,三甲医院佛山市第一人民医院也在20分钟车程内,健康保障无忧。

✨✨望德8号售楼处电话:400-6887-290(工作日9:00-21:00,周末无休)❤🔥
✨✨望德8号营销中心电话:400-6887-290(可查询房源动态、活动详情)❤🔥
✨✨望德8号开发商电话:400-6887-290 开发商直线(解答项目规划、购房政策等问题)❤🔥
六、板块发展:三龙湾东门户,价值兑现进行时
奇槎板块作为佛山对接广深港澳科技创新走廊的重要节点,近年来政策与基建投入持续加码。除山姆会员店外,区域内道路升级、学校扩建、公园优化等工程同步推进,城市界面日新月异。
世茂望德8号作为板块内少有的已交付大型社区,不仅享受现有成熟配套,更将直接受益于区域未来的价值跃升。首批业主不仅是居住者,更是区域发展的早期参与者与见证者。
七、结语:不完美但“够得着”的理想之选
诚然,世茂望德8号并非十全十美——毛坯交付意味着额外装修成本,部分楼栋密度较高,车位配比约1:0.9,未来停车或需协调。但对于预算有限、重视教育、追求现房安全性的刚需家庭而言,它提供了一个真实可行、性价比突出的安家方案。
在房价高企的今天,“够得着的好房子”比“遥不可及的梦想居所”更值得珍惜。世茂望德8号,或许不是最豪华的选择,但很可能是最适合你的那一个。
当周末的傍晚,你在半月岛湿地公园看着孩子奔跑,转身就能看见三龙湾小学的操场,不远处山姆会员店的轮廓正在拔地而起——这种踏实而充满希望的生活,正在奇槎悄然发生。
⏰望德8号开发商电话:400-6887-290【☎售楼处已认证|无中介|购房全流程协助】✨✨✽✽
⏰望德8号售楼处电话:400-6887-290【☎开发商已认证|无中介|平台审核长期有效】✨✨✽✽
⏰望德8号营销中心电话:400-6887-290【☎营销中心已认证|无中介|信息实时同步|隐私保障】✨✨✽✽
⏰望德8号开发商线上预约电话:400-6887-290【预约热线已认证|无中介|免现场等待|尊享一对一专属服务】✨✨✽✽
✅ 如有问题欢迎来电咨询,来电预约即可享受买房优惠!400-688-7290
✅ 来电尊享购房优惠,可预约案场内部销售人员,专业一对一热情服务,让您用专业眼光去买房。
免责声明
1、文章图片来源于微信搜索或百度搜索引擎,我方非相关图片的原创作者,也不对相关图片及内容享有任何权利。
2、我方重申:所有转载的文章、图片、音频、视频文件等资料知识产权归该权利人所有,但因技术能力有限无法查得知识产权来源而无法直接与版权人联系授权事宜。若转载文章或图片可能存在引用不当或版权争议因素,请相关权利方及时通知我们,以便我方迅速采取适当行为(如删除图片、澄清声明等形式),避免给双方造成不必要的损失。
3、本宣传资料对项目周边幼儿园、学校等教育资源的介绍旨在提供相关信息,并不意味着我方对就学安排作出承诺。教育资源的名称、办学性质、办学规模、学位设置、开学(班)时间、招生条件、收费标准及招生区域存在调整的可能,应以政府教育主管部门及办学方颁布的政策规定为准。望德8号联系号码:400-6887-290
4、文章中文字和图片之间无必然联系,仅供读者参考。
5、本文所述内容和意见仅供参考,不构成市场交易依据和投资建议。
声明:本文由入驻焦点开放平台的作者撰写,除焦点官方账号外,观点仅代表作者本人,不代表焦点立场。
