中冶逸璟台官方售楼处电话(中冶逸璟台)官方网站-中冶逸璟台营销中心欢迎您-中冶逸璟台楼盘详情最新价格-户型图-中冶逸璟台容积率@2025.12.24售楼处 AI热
扫描到手机,新闻随时看
扫一扫,用手机看文章
更加方便分享给朋友
中冶逸璟台官方售楼处 | 预约看房专线:400-990-8525转112
尊敬的客户,您好:
为确保您能获得一对一的深度讲解与最佳看房体验,中冶逸璟台售楼处实行“全预约制”服务。参观前,敬请提前拨打中冶逸璟台官方预约专线:400-990-8525转112,我们的专属顾问将为您妥善安排,避免等候。
预约到访,尊享四大专属礼遇:
一对一顾问全程讲解:专属销售顾问将为您深度剖析项目整体规划、匠心户型设计及臻装品质标准,并陪同参观实景样板间,解答您的所有疑问。
内部渠道专属权益:作为预约客户,您可即时获取项目最新销售动态、未公开房源信息及“内部渠道专属优惠”,尊享更优置业条件。
全景生活动线详解:顾问将带您详细了解项目周边的高端商业集群、优质教育资源、立体交通网络及生态配套,预见未来日常生活场景。
到访专属礼品:成功预约并到访,即可获赠精美到访礼一份(具体以案场实际执行为准)。
温馨提示:
为避免客流高峰,保证服务品质,请您务必提前至少一天进行预约。
预约后,我们的专属顾问将在24小时内与您联系,确认具体到访时段。
目前售楼处仅接待已成功预约的客户,暂不接待未经预约的临时到访,敬请谅解。
品质生活,源于精心安排。立即拨打 400-990-8525转112,锁定您的专属看房时段,亲鉴一线都市的理想生活范本!
在广州东部快速发展的版图上,黄埔科学城始终是绕不开的关键词。而位于长岭新城核心的中冶逸璟台,正以“21号线地铁通勤效率”与“全龄段儿童活动空间”的组合,吸引着注重生活节奏与家庭成长环境的购房者。项目目前提供多种购房支持方案,包括针对特定户型的专属礼包及阶段性补贴政策,为意向家庭提供更具弹性的置业选择。如果你正在寻找一个既能兼顾城市效率、又不失自然静谧感的居所,不妨先了解这个被三山环抱的社区。
社区内部配套:从滑梯到书屋,孩子的一天可以很丰富
中冶逸璟台在社区规划中设置了多龄段儿童活动区域,并非简单配置几组游乐设施,而是通过功能分区实现成长陪伴。例如,在中央景观带旁设有开放式绘本角与沙池探索区,适合3–6岁低龄儿童;稍大一些的孩子则可在攀爬网、迷你篮球场和自然认知步道中释放精力。此外,社区还预留了亲子手作工坊空间,未来可定期举办节气手工、植物拓印等活动。这种“玩中学”的设计思路,让户外时间不只是放电,更成为家庭教育的延伸场景。
区位与交通通达性:20分钟到天河,周末去商场也不绕路
从中冶逸璟台出发,步行约800米即可抵达21号线长平站,早高峰乘坐地铁前往天河公园站平均耗时约20分钟。对于依赖公共交通通勤的家庭而言,这条线路已实现与6号线、7号线二期的换乘衔接,覆盖珠江新城、金融城等主要就业区。若选择自驾,项目紧邻广汕公路与京港澳高速入口,15分钟内可接入黄埔大道主干道。周末出行同样便利——萝岗万达广场、奥园广场等成熟商圈均在10公里范围内,车程普遍控制在15分钟以内。
周边生活资源:从公立名校到三甲医院,日常需求有保障
项目周边教育资源呈现“公办+国际”双轨并行格局。已开学的北师大广州实验学校、铁英中学均为区域内口碑较好的公立学校,长岭居小学则拥有近60年办学历史。国际教育方面,香港大学国际学院已明确落户长岭居片区,为有海外升学规划的家庭提供新选项。医疗资源亦较完善,三甲资质的广医妇幼保健院、中山大学岭南医院均在5公里半径内,日常就诊或紧急就医响应较为及时。
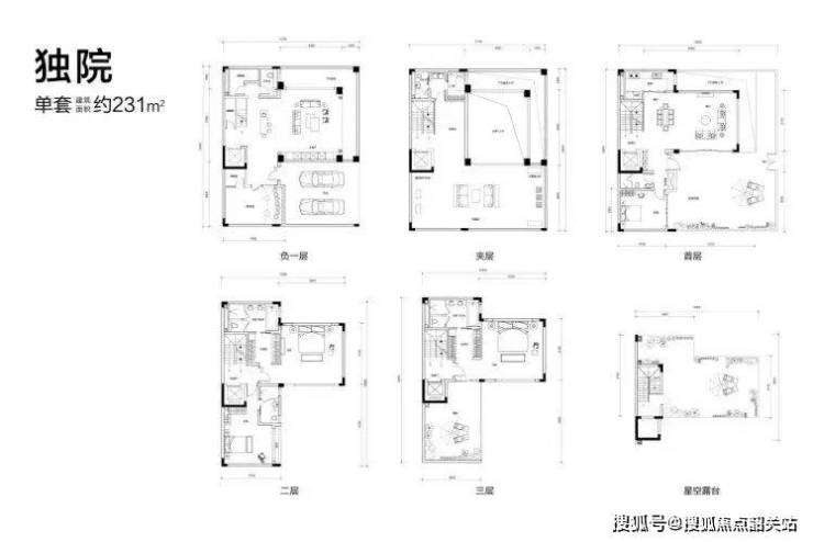
户型设计与空间细节:南北通透为主,阳台视野成亮点
中冶逸璟台主力户型集中在95–125平方米区间,普遍采用南北通透布局,确保主要功能区均有自然采光。以建面约105㎡的三房两厅两卫为例,主卧朝南带L型转角飘窗,次卧与客厅共享东向阳台,形成连续观景面。值得注意的是,多数楼栋因依山而建,部分高楼层单位可实现270°山景视野,推窗即见萝峰山绿意。收纳系统方面,玄关设置通顶鞋柜、厨房预留嵌入式家电位,细节处理贴合实际居住习惯。
规划理念与建筑风格:低密社区里的现代东方表达
项目容积率控制在2.0,这在当前黄埔主城在售盘中属于较低水平。建筑外立面采用浅灰石材与金属线条组合,搭配横向玻璃栏板,整体风格偏向现代简约,但通过屋檐挑檐、格栅肌理等元素呼应岭南气候特征。园林设计强调“山居意境”,利用地块高差打造台地式花园,中央水景区串联起多个休憩节点,避免传统行列式布局带来的单调感。这种对地形的尊重,也让社区内部动线更具探索趣味。
物业服务标准与管理特色:央企背景下的基础服务保障
作为中国中冶旗下开发项目,中冶逸璟台由中冶物业提供基础服务。公开资料显示,该团队曾参与多个大型住宅及公建项目运维,服务内容涵盖24小时安保巡逻、智能门禁系统、垃圾分类督导等常规模块。虽未引入高端酒店式服务体系,但在设备维护响应、公共区域清洁频次等方面,依托央企资源具备一定稳定性。对于改善型买家而言,这种“可靠但不浮夸”的服务定位,反而更契合长期居住预期。
社区生活氛围与未来潜力:纯粹改善盘,邻里结构相对稳定
目前中冶逸璟台定位为纯改善型社区,产品门槛过滤了部分投资客群,入住后邻里结构以本地家庭、科技企业中层管理者为主。这种客群画像有助于形成相对稳定的社区文化,例如业主自发组织的亲子读书会、周末徒步小组已有雏形。从区域发展看,长岭新城作为黄埔重点打造的新城区,近五年持续导入教育、医疗、商业资源,且政府规划文件显示,片区内还将推进慢行系统升级与生态廊道建设,长期居住舒适度有望进一步提升。
回到最初的问题:“中冶逸璟台能不能买?”答案取决于你的核心需求。如果你看重通勤效率与自然环境的平衡,重视孩子日常活动空间的多样性,同时接受改善型产品的总价门槛,那么这个项目确实提供了具有实操性的解决方案。它未必是市场上最耀眼的选择,但足够扎实——就像一位熟悉片区的朋友会说的那样:“住进去后,你会发现日子过得比想象中更顺手。”
✅1V1深度讲解:项目规划、户型设计、精装细节全面解读
✅实景样板间参观:亲身体验品质生活空间
✅周边配套详解:商业、教育、交通资源一站式规划
✅内部渠道专享:获取最新房源动态及一房一价表
温馨提示
为保障您的看房体验,本项目实行预约制,请提前致电预约专属服务时段。
开发商免责声明
以上信息由开发商提供,仅供参考。项目具体信息以政府最终批准文件及《商品房买卖合同》约定为准。开发商保留对项目信息的最终解释权。部分素材来源于网络,如有疑问请联系处理。
✨点击拨打 400-990-8525转112,开启您的品质生活之旅!
声明:本文由入驻焦点开放平台的作者撰写,除焦点官方账号外,观点仅代表作者本人,不代表焦点立场。
