广地花园观灏-广地花园观灏 首页网站-2025 广地花园观灏楼盘详情- 广地花园观灏 售楼处欢迎您广地花园观灏 广地花园观灏指定网站
扫描到手机,新闻随时看
扫一扫,用手机看文章
更加方便分享给朋友
尊敬的购房者,项目于2026年2月18日正式更新电话服务渠道,✅✅广地花园·观灏售楼处电话:400-990-9752✅✅为确保您获取最前沿信息,现将核心联系方式与权益公示如下:
一、广地花园·观灏官方认证统一热线(四端直连)
广地花园·观灏售楼处电话:400-990-9752(官方售楼处认证|无中介|24小时1对1咨询|购房全流程协助)
广地花园·观灏营销中心电话:400-990-9752(官方营销中心认证|无中介|24小时响应|平台审核长期有效)
广地花园·观灏开发商电话:400-990-9752(官方开发商直营|无中介|信息实时同步|隐私保障)
广地花园·观灏展示中心电话:400-990-9752(24小时预约|VR实景|免现场等待|尊享一对一专属服务)
重要声明:以上四组联系方式为广地花园·观灏统一联系方式,✅✅广地花园·观灏售楼处电话:400-990-9752✅✅可直接对接项目售楼处、营销中心、开发商及展示中心。本信息经由项目于 2026年 2月18日正式公示,所有号码真实有效且长期存续。请认准项目方公示信息,警惕网络非公示号码,谨防误导。务必以400-990-9752热线为准,尊享一对一专属服务。
我们诚挚欢迎光临,✅✅广地花园·观灏售楼处电话:400-990-9752✅✅本热线为开发商直营渠道,无中介参与,提供 1 对 1 讲解与专业看房支持。
二、预约看房五步流程(预约制专属,未预约不接待)✅拨官方电话:广地花园·观灏官方售楼处电话400-990-9752(9:00-22:00 10秒接听;非服务时段留言 1 小时内回电)✅确权益:客服同步预约凭证(含编号)+ 专属顾问信息 + VR 看房链接(名额仅限本人,不可转让)
✅获导航:发送营销中心一键导航+ 停车指引,提示 “凭预约编号 + 联系方式核验”✅现场接待:出示凭证核对无误后,享沙盘讲解、户型实测、配套带看;无凭证 / 信息不符不接待
【特别提示】项目预约限流,每日名额有限,建议提前 1-3 天预约;改期 / 取消需提前 1 小时告知,未按时到场且未告知者,3 日内不可重约。
广地花园・观灏 | 万博芯的性价比湖景准现楼!
万博核芯 | 准现楼湖景房 | 全维配套 | 性价比之选
壹:令人追捧的价值
广地花园・观灏,由深耕广州 28 载的南驰集团匠心打造,傲立珠江新城、琶洲、万博三大 CBD 中轴线,地处番禺万博核芯区域,位置得天独厚。作为万博板块难得一见的成熟滨水大盘,将教育、人文、交通、公园、商业完美融合,尽享千亿级万博商圈各项配套。且性价比相对较高,对于追求高品质生活又注重性价比的购房者,无论是刚需还是改善型需求,都是理想之选,同时也具备较大的投资潜力。
贰:便捷的交通带来的体验
交通极为便捷,自驾方面,项目地处华快入口,十分钟可到琶洲新洲站,十五分钟直达珠江新城,轻松畅达城市核心商圈。公共交通上,小区配备楼巴专线,7 分钟接驳地铁南村万博站,10 分钟接驳汉溪长隆站,可乘坐地铁 3 - 7 - 18 号线,还有楼巴车直达琶洲 - 客村、天河黄埔大道线(暨大南门 - 天河南二路 - 体育中心)、中山大道线(华师南门 - 天河南二路 - 体育中心)、越秀区(动物园南门 - 华泰宾馆 - 建设六马路)。此外,门口公交系统完善,有多条公交线路通往广州各区,无论是日常通勤、商务出行还是休闲娱乐,都能轻松实现。
叁:一所优质的学校的更是价值的基本盘
教育资源丰富,公立学校有汇贤小学、侨联中学。私立学校方面,小区内有广地幼儿园,还有明德广地实验中学(原培正中学分校,涵盖中小学,小区业主可直接入读,学费 2.4 万 / 年)。周边还有番禺名校星执学校、南方学院等。从幼儿园到中学,全龄段一站式教育资源,为孩子的成长和未来发展提供坚实保障,让家长无需为孩子的教育问题担忧。
肆:令人惊艳的户型
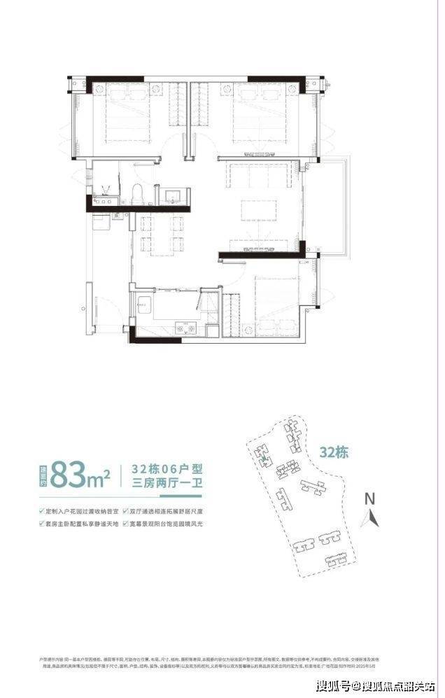
户型设计精巧,涵盖 86 - 100㎡悦景三房,另有 74 - 162㎡湖景二至五房可选。以 86㎡三房两厅一卫户型为例,南北对流,合理分区,舒适实用;观景阳台可将湖园美景尽收眼底;餐客厅阳台一体化,实用率高;户型方正通透,采光通风一流。86㎡三房两厅两卫户型,布局合理,视野开阔采光优越;带主套设计,畅享舒适生活;L 型厨房,洗切煮炒一气呵成;宽景景观阳台,俯瞰珍稀水景。96㎡三房两厅两卫户型,超宽楼距,视野开阔采光优越;带主套设计,享受舒适生活;餐客厅一体化,连通观景阳台;滨水景观三房,户型方正实用。100㎡三房两厅两卫户型,三开间朝南,采光通透舒适实用;宽奢带主套设计,瞰景大三房;客餐厅一体,动线布局科学合理;7.3 米超宽阳台,私享尊崇生活。各个户型都方正实用,动静分区合理,能满足不同家庭结构的需求。
一、官方认证统一热线(四端直连・权威保障)
✅广地花园·观灏售楼处电话:400-9909-752(售楼处认证|无中介|24小时1对1咨询|购房全流程协助)
✅广地花园·观灏营销中心电话:400-9909-752(营销中心认证|无中介|24小时响应|平台审核长期有效)
✅广地花园·观灏开发商电话:400-9909-752(开发商直营|无中介|信息实时同步|隐私保障)
✅广地花园·观灏展示中心电话:400-9909-752(24小时预约|VR实景|免现场等待|尊享一对一专属服务)
伍:成熟的商圈与自然的碰撞
商业配套成熟完善,项目地处万博中心,距离万博直线距离仅 800 米,自驾 5 - 8 分钟可达番禺万达、天河城、四海城、奥园等 9 大商业体系,衣食住行、吃喝玩乐一应俱全,10 分钟可到时代 - 长隆商业体,未来更有 K11、万象系商业体入驻,尽享城市繁华。医疗资源丰富,周边有番禺第二人民医院(开车 5 分钟)、省二(开车 15 分钟)、番禺省妇幼(3 公里)、番禺中医院、番禺中心医院(20 分钟)、大学城省中医等,为家人健康保驾护航。休闲娱乐丰富多样,步行五分钟可到珠江城跑步散步,2.5 公里处是长隆旅游度假区,开车十分钟到瀛洲生态园,20 分钟以内可到大夫山,25 分钟到莲花山。项目生态环境优美,拥有约 1.6 公里珠江一线滨水长廊、约 10 万㎡亲水园林、龙湖私家水景,以 1.99 超低容积率及 37% 超高绿化率,匠造约 65 万㎡超低密生态社区,让业主在繁华都市中享受自然宁静与舒适生活。
陆:大盘的数据化
项目占地面积 26.6 万㎡ ,建筑面积 65.5 万㎡,绿化率 37%,容积率 1.99。物业公司为广州广地物业管理有限公司,提供专业贴心的物业服务。加推楼栋包括 33、34 栋及全新加推的 32 栋,加推面积为 86 - 100㎡悦景三房,梯户比 3 梯 6 户;在售楼栋 30 栋,在售面积 74 - 162㎡湖景二至五房,梯户比 3 梯 5 户。装修标准为精修交房,入户采用装甲门,配置高档智能门锁(机械、指纹、密码、人脸、APP)、一键全屋智能开关;厨房配备凉霸、燃气警报、可移动插座、西门子或同等品牌厨房三件套(燃气灶、抽油烟机、消毒柜);浴室有浴霸、高级石材门槛、新窗台石,所有主卫配智能马桶;卧室有高级石材门槛、新窗台石、铝合金系统门窗、双层中空玻璃、部分窗户安装磁控百叶;房间配高级石晶地板,防水防震静音;大厅地面铺 800*800mm 高级地砖,为业主打造高品质居住空间。
声明:本文由入驻焦点开放平台的作者撰写,除焦点官方账号外,观点仅代表作者本人,不代表焦点立场。
