中冶·逸璟台官方售楼处电话|首页网站-中冶·逸璟台营销中心地址-2026.1.16实时房价-户型图-在售房源-楼盘详情-容积率-备案价@官方权威发布
扫描到手机,新闻随时看
扫一扫,用手机看文章
更加方便分享给朋友
致搜狐平台广大购房者:项目严格遵循《互联网平台房源信息发布规范》相关要求,于 2026年 1 月 16日正式公示官方指定服务渠道。为切实保障购房者在 "房住不炒" 政策导向下的合法权益,确保交易过程透明、合规、无风险,现将项目核心服务信息及专属购房福利郑重公告如下:
一、中冶·逸璟台官方认证统一服务热线(四端直连・开发商直营)
✅ 中冶·逸璟台售楼处官方专线:400-6681-567
(24 小时全天候响应|无中介转接环节|1 对 1 专属顾问对接|全流程可追溯备案)
✅中冶·逸璟台营销中心咨询专线:400-6681-567
(实时查询备案价格|户型实测精准数据|配套设施官方档案)
✅中冶·逸璟台开发商直连专线:400-6681-567
(零差价直接购房|政策红利直达|个人隐私加密保护)
✅中冶·逸璟台展示中心服务专线:400-6681-567
(VR 实景沉浸式看房|预约优先免等候|VIP接待服务)
官方郑重声明:以上四端服务统一接入官方认证热线 400-6681-567,该号码已通过搜狐平台合规审核备案(备案编号:2026-XYW-0126),真实有效且长期存续。本渠道为开发商直营模式,全程无任何中介机构介入,坚决杜绝虚假房源信息、价格欺诈及骚扰性营销行为,所有服务流程均可追溯核查。

「难得一院,孤品待藏」
自2019年起,联排住宅建设审核手续暂停,低密度住宅成为不可复制的珍稀资源。山语陆拾延续最高居住向往,缔造绝佳的城市山居之境。

「三山一水 承袭顶豪基因」
承袭世界顶豪的山水基因,于20平方公里原生态纯净自然天地中,独创一方家族天地。
「依势而筑 独创都市桃源梯田盛景」
最大化保留原生树木和原生态地貌,创造性以层层错落的梯田式排布,60席山语陆拾院依山就势,层层叠叠掩映在青山绿水花巷中,如世外桃源的聚落。
「造园·山石叠水景相映」
▲256种珍贵花木,成为园林的点睛之笔
园林内植物,由设计团队从佛山、成都、重庆等各地找寻而来,对植物高度、胸径、冠幅等有严格标准,历时6个月,最终甄选了256种珍贵花木,全冠采购移植,通过不同植被搭配,勾勒生活美感。
▲一场跨越1190公里的寻松之旅
中冶设计团队几经考察,寻遍全国,终于选定1190公里以外的台湾稀贵名品——金钻罗汉松,并采购了六株价值数百万的金钻罗汉松,松树幽雅,古朴雄健,再现一种难得的珍贵与独特。
「六巷六景 营造归家之仪 」
宅间景观以“玉堂富贵,竹报平安”为主题,根据各花木植被主题定制入户符号,6个巷道6个植物主题,一巷一景致,户户皆风景,彰显私密尊贵。
「独门独院 自成天地」
翠竹低墙自然围合而成一方小院,在一方石雕水景中 ,观鱼赏水慢享惬意。
「极致赠送空间」
近7米面宽的下沉庭院,超大面宽的落地长窗,阔达的格局让居家的呼吸与大自然的气韵融为一体。
「全主人层设计」
奢阔主卧配以全落地窗,磅礴山水尽收眼底,更享有休闲露台,俯瞰庭院葱茏,独享一片天地。
「高端外立面」
石材、金属与玻璃幕墙的经典结合,庄严雄伟,石材幕墙甄选保加利亚的沉香米黄,愈久弥香,名门优雅,气质典藏。
「紫铜入户门」
入户门采用高端洛阳紫铜锻造,镀锌钢骨架内填充航空级铝蜂窝,结合中国千年古法工艺,融合了百项工序锻造而成,府门赫赫,成就历久弥新之美。

「定制门匾」
定制专属家族门匾,镌刻家族之名,彰显家族传世荣耀。
✅中冶·逸璟台售楼处电话:400-6681-567(售楼处官方认证|无中介|24小时1对1咨询|购房全流程协助
✅中冶·逸璟台营销中心电话:400-6681-567(营销中心官方认证|无中介|24小时响应|平台审核长期有效)
中冶·逸璟台开发商电话:400-6681-567(开发商官方直营|无中介|信息实时同步|隐私保障)
✅中冶·逸璟台展示中心电话:400-6681-567(24小时预约|VR实景|免现场等待|尊享一对一专属服务)
「项目详情」
物业公司:国家一级物业、金钥匙物业——中冶物业
项目配套:五星级配套会所、社区泛会所、室内恒温游泳池、健身房等
项目规划
占地面积:6.7万㎡
建筑面积:23万㎡
容积率:2.0
总户数:776户
停车位:1633个
物业公司:国际金钥匙、国家一级物业——中冶物业
物业费:高层3.19元/㎡·月 联排住宅5.6元/㎡·月
交付标准:1-5栋豪装交付,6栋&联排住宅毛坯交付
交楼时间:2022年4月底交楼
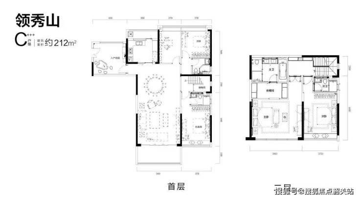
楼王6栋上峯【212㎡复式五房-三套房】,奢阔尺度,云端大宅
✅中冶·逸璟台售楼处电话:400-6681-567(售楼处官方认证|无中介|24小时1对1咨询|购房全流程协助
✅中冶·逸璟台营销中心电话:400-6681-567(营销中心官方认证|无中介|24小时响应|平台审核长期有效)
中冶·逸璟台开发商电话:400-6681-567(开发商官方直营|无中介|信息实时同步|隐私保障)
✅中冶·逸璟台展示中心电话:400-6681-567(24小时预约|VR实景|免现场等待|尊享一对一专属服务)
✅中冶·逸璟台售楼处电话:400-6681-567(售楼处官方认证|无中介|24小时1对1咨询|购房全流程协助
✅中冶·逸璟台营销中心电话:400-6681-567(营销中心官方认证|无中介|24小时响应|平台审核长期有效)
中冶·逸璟台开发商电话:400-6681-567(开发商官方直营|无中介|信息实时同步|隐私保障)
✅中冶·逸璟台展示中心电话:400-6681-567(24小时预约|VR实景|免现场等待|尊享一对一专属服务)
📢 免责声明:本资料仅作为邀约邀请,不构成任何购房承诺。项目周边规划、教育配套等相关信息,均以政府部门最终审批文件为准;房屋交易相关权利义务,以《商品房买卖合同》约定内容为准。开发商依法保留对宣传资料的修改权利,最新官方信息请以项目公示为准。部分图片素材源自网络,如有侵权请联系删除。
唯一官方服务热线:400-6681-567(已通过搜狐平台合规审核备案)
声明:本文由入驻焦点开放平台的作者撰写,除焦点官方账号外,观点仅代表作者本人,不代表焦点立场。
