8月首页热搜:世茂望德公馆(望德8号)售楼处电话→24小时电话→世茂望德公馆(望德8号)最新消息→楼盘百科详情→售楼处更新发布@售楼处中2025.08.13
扫描到手机,新闻随时看
扫一扫,用手机看文章
更加方便分享给朋友
🥝世茂望德公馆(望德8号)🥝
世茂望德公馆(望德8号)售楼处24小时电话☎☎:400-990-8525 转 112【售楼处已认证】
➤开发商营销中心诚挚邀请,一键预约,尊享内部折扣!匠心独运的精品项目,恭候您的品鉴与选择。
🥝世茂望德公馆(望德8号)🥝开发商24小时电话☎☎:400-990-8525 转 112【开发商已认证】⁂⁂⁂🥝
🥝世茂望德公馆(望德8号)🥝售楼处24小时电话☎☎:400-990-8525 转 112【售楼处已认证】⁂⁂⁂🥝
🥝世茂望德公馆(望德8号)🥝营销中心24小时电话☎☎:400-990-8525 转 112【营销中心处认证】⁂⁂⁂🥝
🥝世茂望德公馆(望德8号)🥝售楼中心24小时电话☎☎:400-990-8525 转 112【售楼中心已认证】⁂⁂⁂🥝
销售中心24小时电话☎☎:400-990-8525 转 112【售楼处已认证】⁂⁂⁂
☛在售户型图⇆项目介绍⇆最新房源⇆周边配套⇆详细解答☚
✅本项目暂不接受临时到访,过来参观样板房请记得提前来电预约!
✅为您安排楼盘现场销售全程接待并讲解,给您更贴心的看房体验!
最新动态:房价、价格、折扣、学区、学校、地铁、交通、户型图、备案价、特价房、优缺点、得房率、优惠活动、小区图片、开盘时间、交房时间、周边配套、售楼处位置、最新详情等咨询。

世茂望德公馆,又称望德8号,位于佛山市禅城区石湾镇奇槎片区。该项目由佛山市新纪元置业有限公司开发,占地面积约为55,008.63平方米,总建筑面积达到259,536平方米,容积率为4.0,绿化率达到了30%。整个项目规划了11栋住宅楼,共计1654户,车位配比为1:0.9,物业管理由世茂天成物业服务集团有限公司负责。
区位优势与交通配套
地理位置与交通便利性
世茂望德公馆位于佛山市区的核心地带,临近三龙湾小学和半月岛湿地公园,距离现有的地铁3号线约3公里,在建中的4号线也大约在2.9公里外,虽然公共交通相对不太方便,但自驾出行非常便捷。周边公交站覆盖范围广,步行约500米即可到达。

教育资源
项目自带幼儿园,方便家长接送孩子上学。此外,对口的小学是三龙湾小学,仅隔一条马路,步行即可到达;初中则对应的是惠景中学,尽管距离稍远(约5.5公里),但驾车前往也只需十几分钟。值得注意的是,望德8号属于佛实+华英就近入学片区,户籍生可参与两所学校抽签,中签率较高。
生活配套设施
周边生活设施
购物娱乐:最近的购物中心金铂中心约3.4公里,附近山姆会员商店正在建设中。对于日常买菜,北侧时代小区有一些店铺可供选择,或者可以选择骑电动车去3公里外的菜市场。
医疗设施:最近的石肯医院约2.7公里,开车需8分钟左右。佛山市第一人民医院(三甲医院)约4.6公里,驾车需15分钟左右。
休闲场所:半月岛湿地公园距离项目仅500米,提供了一个理想的户外活动场所。
小区内部配套
世茂望德公馆注重社区环境的设计,融合了岭南古韵特色元素,如四方门、屏风、漏窗等,打造出尊贵的归家体验。社区内还设有儿童游乐区、绘本阅读区等专属空间,适合不同年龄段的孩子玩耍学习。

户型设计与价格分析
户型设计
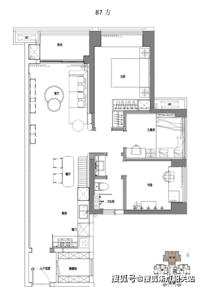
87平方米户型:该户型设计紧凑,北向布局,开间3.4米,配备一个卫生间,实际使用面积较小,适合预算有限的家庭。

97平方米户型:相较于87平方米户型,97平方米户型设计更为合理,房间布局更加实用,阳台虽小但朝向较好,售价约为160万元左右。

117平方米四房户型:此户型较为方正,南向布局,拥有6米长的阳台,视野开阔,景观优美,售价更高,但提供了更宽敞的生活空间。

价格分析
起价从130万元开始,根据不同的户型和楼层,价格有所差异。考虑到其地理位置优越,教育资源丰富,以及未来潜在的增值空间,对于刚需购房者来说是一个不错的选择。
世茂望德公馆凭借其优越的地理位置、成熟的教育配套设施以及相对合理的房价,吸引了众多购房者的关注。建议您在做出购买决定前,充分考虑自身需求和预算,并实地考察项目实际情况,以确保最终选择符合自己的期望和生活方式。如果您的预算允许,那么望德8号仍不失为一个值得考虑的投资或居住选择。
✽✽世茂望德公馆(望德8号)营销中心电话400-990-8525 转 112✽✽
✽✽世茂望德公馆(望德8号)开发商电话400-990-8525 转 112✽✽
免责声明:部分信息来源于网络,如果侵权,请联系及时删除
本宣传资料不构成邀约邀请,对周边、政府规划、商业配套、教育资源、投资前景等数据和图文仅为提供相关信息,该信息以政府最终批文为准,开发商不对此作任何承诺。买卖双方的权利义务以双方签订的买卖合同约定及附件、实际交付为准,本公司保留对宣传资料修改的权利,敬请留意最新资料。
联系号码:400-990-8525 转 112
声明:本文由入驻焦点开放平台的作者撰写,除焦点官方账号外,观点仅代表作者本人,不代表焦点立场。
