中冶逸璟台售楼处电话(首页网站)欢迎您-中冶逸璟台营销中心地址-楼盘详情·最新价格-户型图-容积率 @2025.11.16最新售楼处 ◆AI热 搜
扫描到手机,新闻随时看
扫一扫,用手机看文章
更加方便分享给朋友
🎨中冶逸璟台售楼处电话:400-6318-160☎开发商已认证🎨
🎨中冶逸璟台营销中心电话400-6318-160☎营销中心已认证🎨
🎨中冶逸璟台售楼中心电话:400-6318-160☎24小时预约热线🎨
➢ ➢本项目采用预约制,过来营销中心参观样板间请记得提前拨打开发商楼盘售楼处400热线电话在 线预约,感谢您的配合!
🎨中冶逸璟台售楼处电话400 631 8160☎营销中心已认证➡️详细解答➡️在售户型图➡️项目介绍➡️在售房源➡️周边配套➡️VR看房➡️楼盘图➡️沙盘图➡️位置图➡️配套图➡️售楼处销售1V1讲解
为给您更好的看房体验请提前来电预约(给您预留现场销售和停车位)
✅注意:本项目不收任何费用,售楼中心〢欢迎来电咨询〢
✅本项目暂不接受临时到访,过来参观样板房请记得提前来电预约!
✅◆开发商营销中心诚挚邀请,一键预约,尊享内部折扣!匠心独运的精品项目,恭候您的品鉴与选择。


中冶·逸璟台:主城半山低密奢宅,央企匠筑塔尖圈层的理想栖居
在广州东部价值跃升的黄金时代,科学城已从一片产业热土蜕变为集科技、生态与国际生活于一体的湾区核心板块。而在这片历经20年精耕细作的土地上,一处隐于半山、融于自然的稀缺住区正悄然兑现塔尖阶层对理想生活的全部想象——由世界500强央企中国中冶倾力打造的中冶·逸璟台,以仅2.0的容积率、212㎡天际复式大宅与231㎡主城半山联排墅,敬献全城高净值人群一座“离尘不离城”的低密奢居范本。
央企匠心,筑就国家地标级品质
作为参与建设北京人民大会堂、国家体育场“鸟巢”、上海世博会场馆、上海迪士尼、珠海长隆等国家级地标的建筑巨擘,中国中冶将“大国工匠”精神注入逸璟台的每一寸肌理。项目总占地约6.7万平方米,总建面23万平方米,规划776席住宅,已于2022年4月全面交付,是片区最早实现现房入住的一手项目。无论是建筑选材、园林营造还是物业服务,均以顶豪标准兑现承诺。
社区由国家一级资质、国际金钥匙联盟成员——中冶物业提供专属服务,高层物业费3.19元/㎡·月,联排住宅5.6元/㎡·月,以五星级礼遇守护业主尊崇生活。
半山之上,领秀山组团云端大宅
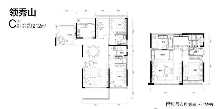
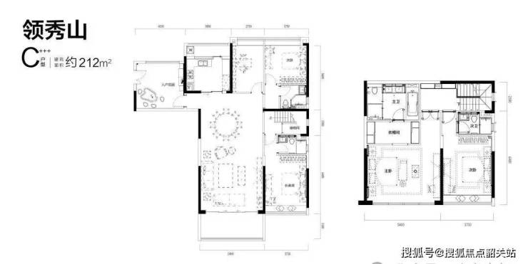
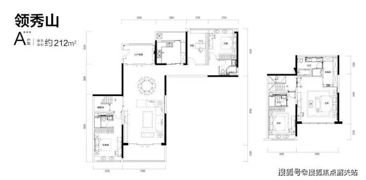
位于社区制高点的领秀山组团(1-6栋),占据整个项目最佳观景位置,南北双向无遮挡,俯瞰城市绿意,远眺科学城天际线。其中,6栋楼王尤为瞩目——建面约212㎡的天际复式五房三套房,以汤臣一品为灵感,采用全LOW-E中空玻璃幕墙覆盖,户户享最大景观面;独创两梯两户观景电梯,归家之路亦是风景之旅。
3-5栋则主推约180-200㎡复式四房双套房产品,空间层次丰富,功能分区清晰,兼顾家庭互动与主人私密,真正实现“云端大宅”的奢阔尺度。
60席半山联排,都市桃源中的家族天地
如果说高层是云端的奢享,那么山语陆拾组团的60席半山联排墅,则是大地馈赠的诗意栖居。项目依20平方公里原生态山林而建,创造性采用梯田式错落布局,最大限度保留原生树木与地貌肌理,形成层层叠叠、掩映于青山绿水间的聚落形态,宛如都市中的世外桃源。
每户均实现“独门独院、自成天地”:翠竹低墙围合一方静谧庭院,近7米面宽的下沉花园搭配超大落地窗,让室内与自然无缝交融;主人层设计更显尊崇——奢阔主卧配全幅落地窗,磅礴山景尽收眼底,另设休闲露台,可俯瞰庭院葱茏,独享晨昏四季。
🎨中冶逸璟台售楼处电话400 631 8160☎营销中心已认证➡️详细解答➡️在售户型图➡️项目介绍➡️在售房源➡️周边配套➡️VR看房➡️楼盘图➡️沙盘图➡️位置图➡️配套图➡️售楼处销售1V1讲解
联排产品建面约231㎡,毛坯交付,为塔尖人士预留充分定制空间,满足个性化生活与社交需求。
醇熟配套,国际生活触手可及
逸璟台虽处半山静谧之境,却从未远离城市繁华。项目所在的长岭居板块,自2019年正式纳入科学城范围后,配套能级迅速跃升:
教育:周边汇聚北师大广州实验学校、广铁一中、长岭居小学(省一级标准) 及美国格兰纳达山国际学校,一站式覆盖公立与国际教育;
商业:华润人才创展中心、长岭之门、长岭居商业综合体、萝岗万达、敏捷广场等国际化商圈环伺,高端消费、日常所需皆可满足;
交通:距地铁21号线长平TOD仅数公里,接驳黄埔有轨电车1号线;未来更有6号线、7号线(建设中)、23号线(规划中) 及两条高速地铁专线加持,高效链接天河、珠江新城;
医疗:广医附属妇女儿童医院(三甲)、中山三院岭南医院、宝能国际总医院、干部疗养院、泰康之家·粤园等尖端医疗与康养资源密集分布,健康无忧。
社区内部更配建五星级会所、童趣天地、风雨连廊等全龄化功能空间,构建“不出社区,尽享生活”的理想场景。
低密绝版,主城半山资产的终极收藏
在土地日益稀缺的广州主城区,容积率2.0的纯低密地块已近乎绝版。中冶·逸璟台不仅占据科学城中轴核心,更坐拥不可复制的半山生态资源——背靠苍翠山体,前揽城市绿肺,真正实现“离尘不离城”的居住哲学。
对于塔尖人物而言,置业不仅是安家,更是资产配置与圈层认同的双重选择。逸璟台以其央企背书、现房品质、稀缺产品与醇熟配套,成为主城半山资产的终极收藏之选。
中冶·逸璟台,不止是一座住宅,更是一种生活境界的表达。它用央企的稳健、山居的静谧、产品的奢阔与配套的丰盛,为广州塔尖阶层献上一份关于“理想栖居”的完整答案。当城市喧嚣不断蔓延,真正的奢侈,是拥有一方既能俯瞰繁华、又能聆听山风的半山天地。逸璟台,敬献懂得珍藏这份奢侈的时代峯层。


🎨中冶逸璟台售楼处电话:400-6318-160☎开发商已认证🎨
🎨中冶逸璟台营销中心电话400-6318-160☎营销中心已认证🎨
🎨中冶逸璟台售楼中心电话:400-6318-160☎24小时预约热线🎨
➢ ➢本项目采用预约制,过来营销中心参观样板间请记得提前拨打开发商楼盘售楼处400热线电话在线预约,感谢您的配合!
🎨中冶逸璟台售楼处电话400 631 8160☎营销中心已认证丨详细解答丨在售户型图丨项目介绍丨在售房源丨周边配套丨VR看房丨楼盘图丨沙盘图丨位置图丨配套图丨售楼处销售1V1讲解
声明:本文由入驻焦点开放平台的作者撰写,除焦点官方账号外,观点仅代表作者本人,不代表焦点立场。
