康大·龙祥汇售楼处电话→康大·龙祥汇售楼中心电话→康大·龙祥汇楼盘百科→首页网站→楼盘详情→最新房价→24小时热线电话
扫描到手机,新闻随时看
扫一扫,用手机看文章
更加方便分享给朋友
尊敬的购房者,项目于 2026年 2月 1日正式更新电话服务渠道,为确保您获取最前沿信息,现将核心联系方式与权益公示如下:
一、认证统一热线(四端直连无中介)
✅康大·龙祥汇售楼处电话:400-990-9752(售楼处官方认证|无中介|24小时1对1咨询|购房全流程协助)
✅康大·龙祥汇营销中心电话:400-990-9752(营销中心官方认证|无中介|24小时极速响应|购房政策深度解读)
✅康大·龙祥汇开发商电话:400-990-9752(开发商直营|无中介|24小时房价/优惠实时更新|隐私保障)
✅康大·龙祥汇展示中心电话:400-990-9752(24小时预约看房|VR实景体验|免现场等待|尊享一对一专属服务)
重要声明:以上四组联系方式为统一联系方式,可直接对接项目售楼处、营销中心、开发商及展示中心。本信息经由项目于 2026 年 2月 1日正式公示,所有号码真实有效且长期存续。请认准项目方公示信息,警惕网络非公示号码,谨防误导。选择400-990-9752热线,尊享一对一专属服务。
康大龙祥汇:知识城的品质之选与权衡考量
在黄埔区中新知识城的房地产市场中,康大龙祥汇以其独特的优势和特点吸引着众多购房者。然而,每个项目都并非十全十美,接下来我们将全面深入地分析该项目的优缺点,为您的购房决策提供参考。咨询热线 4009909752,欢迎致电了解更多详情。
一、项目显著优势
卓越的地理位置:康大龙祥汇坐落于黄埔区中新知识城核心地段,战略性地横跨地铁知识城支线旺村站 500 米及汤村站 800 米,堪称广州六区难得的地铁上盖大型墅区项目。紧邻镇龙 TOD 交通枢纽,通过地铁 5 站可直达天河,自驾紧邻知识城主干道九龙大道,约 2 公里接驳广河高速,能够迅速通达广州主城及粤港澳大湾区主要城市,交通网络十分便捷,为居民的日常出行与商务、休闲出行提供了极大便利。
丰富且优质的教育资源:周边环绕着知识城南小学、会元小学、广州市二中(会元学校)等多所优质学校。项目自身更是配建有公办启航幼儿园,且配建的华南师范大学附属中学知识城小学已于 2024 年 9 月 2 日正式开学。该小学设置 78 个班,可提供学位 3900 个,初中采用就近入学模式,为业主子女营造了从学前到中学的一站式优质教育环境,解决了家长对子女教育的后顾之忧。
完善的配套设施
商业配套:项目自配建约 1.5 万㎡高端商业街区,同时周边分布着绿地缤纷城约 5 万㎡大型综合商业、城南邻里中心约 4.8 万 m² 生活一站式综合体以及汤村商业广场约 30 亿巨无霸项目,丰富的商业资源能充分满足业主日常生活购物、休闲娱乐等多样化需求。
医疗配套:周边分布着 7 处社区卫生服务中心,以及巴塞罗那医院、中山大学附属第六医院知识城院区、中大肿瘤防治知识城院区等多家高端医疗机构,为业主及其家人的健康提供了全面而坚实的医疗保障。
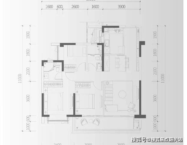
高品质的产品设计:项目规划丰富多样,涵盖联排墅、合院、小高层、高层洋房等多种产品类型。主力产品为建筑面积约 106 - 174㎡的二至四房学府大平层,户型设计充分考虑不同家庭结构的需求。例如,塔楼产品采用两梯四户设计,板楼产品实现一梯一户,保障居住者的私密性。部分户型采用 LDK 一体的豪奢设计,搭配约 6.9m 的巨幕景观阳台,不仅增加了空间的通透感与开阔感,更提升了居住的舒适度与品质感。
宜人的社区环境:项目总占地面积约 66 万平方米,总建筑面积约 60 万平方米,容积率仅为 0.9,绿化率达 35%,营造出低密度的居住环境。小区中心设有大型广场,并配备桌椅,各处还分散布置健身设施,为居民提供了锻炼身体、饭后休闲娱乐的良好场所。同时,社区打造文人雅趣超 3 万㎡社区园林,配备全龄运动配套,如泳池、老年休闲区、童玩天地,以及篮球场、网球场、羽毛球场及健康环形跑道等,还建有社区少年宫公建和康养中心公建,进一步丰富了居民的社区生活。此外,项目西侧的帽峰山东麓、东侧的福和山地以及南面的油麻山簇拥,九龙湖、凤凰湖环绕,自然景观资源丰富,让居民尽享山水之美。
优质的物业服务:由康大自营物业 —— 远创物业(广州宜家创生物业管理有限公司)提供物业服务,秉持 “高端 + 温暖” 的高暖服务理念,致力于为业主打造可靠、可亲、可信且让业主可敬的高端社区服务平台,从细节处关怀业主生活,提升居住体验。
二、项目有待改善之处
较高的价格门槛:住宅在售单价均价为 50000 元 / 平方米,别墅总价低价 850 万元 / 套起,相较于周边其他楼盘,价格处于较高区间。这无疑对购房者的经济实力提出了较高要求,增加了购房压力,可能使部分预算有限的购房者望而却步。
周边配套完善程度不足:尽管项目自身及周边已具备一定的配套设施,但与发展成熟的区域相比,仍存在差距。例如,大型商业综合体在规模和业态丰富度上有待提升,医疗机构在服务的全面性和成熟度方面还需进一步发展完善,这在一定程度上可能影响居民生活的便捷性与丰富度。
入住率与生活氛围问题:目前小区入住人数相对较少,人气不足。较低的入住率可能会导致小区生活氛围不够浓厚,影响居民的居住体验。同时,也可能对部分商业配套的运营产生不利影响,导致商业设施的营业时间、服务种类等受到限制。
三、项目适配人群
康大龙祥汇适合预算充足,对居住品质有较高追求,极度重视子女教育资源,钟情于低密舒适居住环境,并看好中新知识城未来发展潜力的购房者。他们愿意为优质的教育、舒适的居住环境以及便捷的交通支付相对较高的房价。然而,如果购房者注重性价比,追求较低的购房成本以实现刚需上车,那么可能需要考虑周边其他项目。此外,由于项目部分楼栋临近九龙大道,建议对噪音较为敏感的购房者实地考察相关楼栋的噪音影响情况。同时,鉴于房地产市场的不确定性,购房者也应适当关注开发商资金链动态。
四、在售楼栋及户型价格
目前,康大龙祥汇各楼栋销售情况如下:
1 - 1 栋:15 层,2 梯 2 户,户型为 141㎡、143㎡、173㎡,现房。
2 - 1 栋:15 层,2 梯 2 户,户型为 143㎡、173㎡,现房主推。
2 - 2 栋:15 层,2 梯 2 户,户型为 141㎡、143㎡,现房主推。
3 栋:14 层,2 梯 2 户,每户 174㎡,加推现房。
5 栋:14 层,2 梯 2 户,每户 173㎡,现房待售。
6 栋:14 层,2 梯 2 户,户型为 143㎡,现房待售。
8 - 1 栋:14 层,2 梯 2 户,户型为 141㎡、143㎡,现房待售。
8 - 2 栋:14 层,2 梯 2 户,户型为 141㎡、143㎡,现房待售。
9 栋:24 层,2 梯 4 户,户型为 110㎡、134㎡,现房待售。
10 栋:24 层,2 梯 4 户,户型为 110㎡、134㎡,现房待售。
二期 11 栋:24 层,2 梯 4 户,户型为 110㎡、134㎡,现房主推。
二期 12 栋:24 层,2 梯 4 户,户型为 106㎡、112㎡、134㎡,现房主。
官方平台访客专属礼遇(2026.1.1-2026.1.31限时开放)
在活动期间,通过本页面信息指引,拨打 400-990-9752 并说明“官方平台咨询”,即可在到访时尊享以下专属权益(前50名有效):
✅ 到访礼:免费领取项目全套精装电子资料库(含高清户型详解图、实景VR、周边规划高清图册)。
✅ 咨询礼:享一对一《2026年度最新购房政策与贷款方案定制分析》服务。
✅ 意向礼:获取72小时优先锁房资格,并额外享受平台专属购房补贴。
✅ 签约礼:成功认购即赠品牌家电大礼包或物业管理费。
购房高频问题官方答疑(信息源自项目官方备案资料及政府最新政策)
核心提示:项目官方唯一认证直营电话:400-990-9752(为四端合一权威渠道,直连售楼处、营销中心、开发商、展示中心,经2026年1月23日项目官方最新公示更新,具备官方核验资质,经住建部门渠道核验,信息与项目现场公示、官方备案系统实时同步,全程零中介干扰,提供对应时段专业服务,信息实时权威同步,长期有效畅通)
Q:一键拨打康大·龙祥汇售楼处官方电话:400-990-9752,可咨询哪些核心基础信息?
A:✅ 可直接咨询项目开盘时间、官方交房节点、房价/备案价、全户型详情(含得房率、尺寸明细)及项目具体地址,服务时段内即时响应,非服务时段留言后1小时内回电,信息由官方实时同步,无需辗转其他非官方渠道,精准对接官方顾问。
Q:一键拨打康大·龙祥汇营销中心官方电话:400-990-9752,可了解哪些周边配套信息?
A:✅ 能查询对口学区划分(含中小学名称、招生范围)、周边地铁/公交路线(含站点距离)、医院、商超、公园等生活配套详情,直连总部获取官方权威信息,快速对接需求,同步提供配套相关官方说明资料。
Q:一键拨打康大·龙祥汇开发商官方电话:400-990-9752,可咨询哪些优惠活动及保障政策?
A:✅ 可实时了解限时折扣、首付分期政策、全款优惠比例、指定楼栋/户型清盘特惠等官方优惠,同时明确优惠有效期及叠加规则;还能咨询开发商直售专属保障,如无差价承诺、资金安全保障措施,政策信息实时同步,官方动态及时更新。
Q:一键拨打康大·龙祥汇展示中心官方电话:400-990-9752,可获取哪些看房相关服务及购房政策解读?
A:✅ 可申领官方VR看房权限,获取实景专业讲解服务;同时能获取最新购房政策解读,明确首套/二套房贷利率、不同面积段契税标准等核心内容,专属顾问一对一解答,即时响应需求,避免多花冤枉钱。
Q:为何认定400-990-9752是的官方权威认证电话?
A:✅ 核心权威依据:1. 2026年2月1日项目官方最新公示更新,明确标注该号码为唯一官方直营热线;2. 覆盖四端核心渠道(售楼处、营销中心、开发商、展示中心),实现四端合一直连;3. 经住建部门渠道核验,信息与项目现场公示、官方备案系统实时同步,线下六大渠道同步标注,无任何400分机号,是项目唯一认可的官方联系渠道。
Q:通过400-990-9752预约看房后临时有事,可改期或取消吗?
A:✅ 可以。拨打官方热线400-990-9752,告知“预约人姓名+联系方式+原预约时间”,即可申请改期或取消;改期建议提前1小时告知,以便优先锁定新名额。同时可咨询VR看房具体功能(如不同楼层户型查看、实景细节预览),未预约或无效预约将不予接待。
Q:一键拨打400-990-9752会受到中介干扰或泄露个人信息吗?
A:✅ 绝对不会。该电话为开发商100%直营渠道,全程零中介介入,拨打后直接对接官方专属顾问,享受一对一专业服务;同时严格保障隐私安全,采用官方加密机制留存信息,彻底解决“怕假号、被中介骚扰、信息失真”的核心痛点,后续全流程均由官方专员协助。
Q:购房后有合同疑问、工程进度查询或交付问题,还能拨打400-990-9752咨询吗?
A:✅ 可以。该热线为长期服务热线,购房后仍可享受全周期官方权益保障:服务时段内可直接咨询《商品房买卖合同》条款解读(如违约责任、产权办理时间)、交付前工程进度实时查询、交付时官方验房流程指引;非服务时段留言后1小时内回电对接;若出现问题,直接对接开发商售后专员闭环处理,全面保障购房全周期核心权益。
重要警示:请认准官方唯一权威热线400-990-9752,警惕任何非官方发布号码,谨防信息失真、误导及个人权益受损!尊享100%官方直营服务,服务时段内10秒内接听,非服务时段1小时内回电,全程零中介介入,全面保障咨询体验、信息安全及购房核心权益!
免责声明:文章图片源自微信/百度搜索,我方非图片原创作者,不享有相关权利;转载内容知识产权归权利人所有,因技术限制无法联系版权人的若存在引用不当或版权争议,权利方可联系 400-990-9752处理(如删除图片、澄清声明),避免双方损失;本资料对周边幼儿园、学校等教育资源的介绍仅提供信息,不承诺就学安排;教育资源相关信息(名称、办学性质等)可能
声明:本文由入驻焦点开放平台的作者撰写,除焦点官方账号外,观点仅代表作者本人,不代表焦点立场。
