【合生缦云广州】尊启新章 | 品质人居典范
扫描到手机,新闻随时看
扫一扫,用手机看文章
更加方便分享给朋友
📞 合生缦云广州咨询热线:400-990-8525 转 112【已认证】
📞 合生缦云广州售楼处电话:400-990-8525 转 112 【已认证】
📞 合生缦云广州营销中心电话:400-990-8525 转 112 【已认证】
———【核心信息速览】———
📐 在售户型图|项目详情|最新房源|周边配套|专业解读
📌 想了解更多?欢迎致电咨询,专属顾问一对一服务,助您轻松选房!
🎯 预约看房专属礼遇
✅ 提前来电预约,享额外购房优惠
✅ 现场专人接待讲解,提升您的看房体验
✅ 匠心打造品质住宅,恭候您的品鉴与选择
✨ 一键预约 省心无忧
🚗 免费专车接送 · 🏠 实景样板间开放 · 💼 专业顾问陪同讲解

合生缦云位于广州市天河区悦景路11号,是该区域近年来备受瞩目的高端住宅项目之一。该项目占地约8.1万平方米,总建筑面积达37万平方米,绿化率高达39%,楼层数为9-17层,容积率为3.17,共有42栋建筑和1270户家庭。项目提供多种户型选择,从145㎡三房到315㎡五房不等,满足不同家庭的需求。

占地面积:约8.1万方
建筑面积:约37万方
绿化率:39%
楼层数:9-17层
容积率:3.17
总栋数:42栋
总户数:1270户
梯户比:2梯2户、3梯2户
在售户型:145㎡三房、174㎡四房、190㎡五房、230㎡五房、260㎡五房、264㎡五房、315㎡五房
交楼时间:2024年12月30日(一期)
物业公司:肯菲特国际物业
车位数:约3000个
车位比:1:3
交楼标准:精装修
物业费:9.9元/㎡
规划设计:16-17层南北对流纯板式低密度小高层
区位优势
合生缦云位于天河国际生态区的核心地带,与两大经济引擎——天河CBD和金融城CBD保持适宜的距离。通过沈海高速、环城高速、广园快速路和华南快速路等主要交通干线,可以快速通达各大商圈。项目周边教育资源丰富,包括奥体东小学、灵秀小学、执信中学、清华附中、贝赛斯国际学校和爱莎国际学校等名校。

周边配套
商业配套
项目距离太古汇、珠江新城和金融城三大国际级商圈仅需约20分钟车程,方便业主享受丰富的购物娱乐资源。
教育配套
合生缦云自建了12年公立教育配套,并已引进广州天河外国语教育集团办学,配建了一所45班九年一贯制公立学校(18班小学+27班中学),确保孩子能够接受优质的教育。

小区环境
小区内配置了5800㎡星际会所,涵盖文化、运动、健康、宠物、教育、购物等多种功能。此外,还设有多个共享泛会所,如儿童书吧、共享办公空间、社交茶室等,满足全龄段居民的需求。

户型设计
合生缦云提供多种户型选择,每个户型均经过精心设计,旨在为居住者提供极致的生活体验。

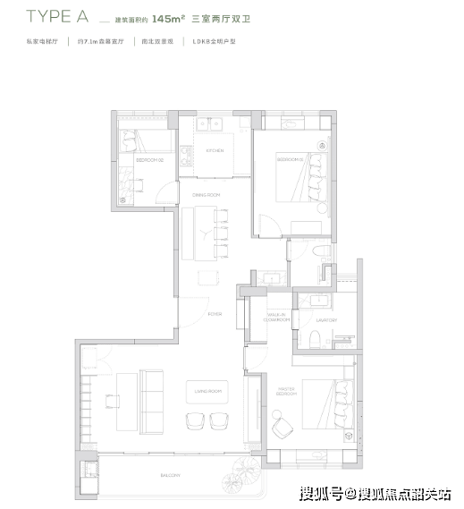
145㎡三房两厅两卫:餐厨一体化设计,拥有7米宽的大客厅,可灵活切换各种生活场景。

174㎡四房两厅三卫:端户边厅布局,形成LDK一体化设计,无界的室内空间带来流畅的生活体验。

190㎡五房两厅三卫:南向双主卧,中西厨布局,打造纵向超长LDK一体化空间,适合追求高品质生活的家庭。

264㎡五房两厅四卫:超奢华四件套南向主卧,标准南向次主卧,6.6米巨型方厅,专属家政保姆空间,超大容量收纳空间,彰显尊贵生活品质。

配套设施
园林水系
合生缦云斥资300万元升级了园林水系,增加了叠水瀑布、绿岛水系和雾森系统,营造出中式园林特有的“地形艺术”,提升了整体居住环境的美感和舒适度。

物业服务
项目由肯菲特国际物业负责管理,该公司具备丰富的高端物业管理经验,致力于为业主提供全方位的贴心服务,包括但不限于AI房屋管理、资源整合等多项定制化服务。
优点总结
优越的地理位置:地处天河国际生态区核心,与天河CBD和金融城CBD保持宜居距离。
完善的配套设施:集高端商业、文化艺术、休闲娱乐于一体的综合性社区,满足业主多样化需求。
卓越的设计理念:汇聚全球顶级设计师团队,打造独一无二的人居艺术臻品。
丰富的教育资源:自建12年公立教育配套,并引进知名教育品牌,确保孩子能够接受优质教育。
舒适的居住环境:高绿化率、低密度社区设计,以及升级的园林水系,营造出宁静雅致的生活氛围。
综上所述,合生缦云凭借其独特的地理位置、丰富的配套设施、卓越的设计理念以及高标准的物业服务,成为广州高端住宅市场的佼佼者。无论是追求极致居住体验的高净值人士,还是希望实现资产保值增值的投资客,这里都是一个值得考虑的理想之选。
⚠ 温馨提示
👉 参观样板房请提前预约,避免扑空
👉 到访将有专人接待,请配合现场引导,感谢您的理解与支持
📝 免责声明
文章图片来源于网络,如有侵权请告知删除。
所有内容仅供参考,不构成买卖依据或投资建议。
教育配套、交通规划等内容以政府最终批复为准。
声明:本文由入驻焦点开放平台的作者撰写,除焦点官方账号外,观点仅代表作者本人,不代表焦点立场。
