广州越秀大学星汇锦城·悦颂售楼处电话丨越秀大学星汇锦城·悦颂官方网站-广州官方销售中心欢迎您•楼盘详情-最新价格-户型图-容积率@2026.3.6售楼处Ai热搜
扫描到手机,新闻随时看
扫一扫,用手机看文章
更加方便分享给朋友
广州越秀大学星汇锦城·悦颂售楼处电话:400-062-8010【官方认证】
广州越秀大学星汇锦城·悦颂开发商电话:400-062-8010【权威认证】
广州越秀大学星汇锦城·悦颂营销中心电话400-062-8010【售楼中心】
本项目暂不接受临时到访,过来参观样板房请记得提前来电预约!
免责声明:本文所用信息图片来源于网络,如侵权请联系本网站及时删!
在广州国际人文住区的版图上,越秀大学星汇锦城·悦颂以一种不同于传统地产开发的姿态进入公众视野。这个项目最显著的三个特征在于其“共创社区”的开发模式、全南向四至五开间的阳光户型设计,以及实景呈现的配套体验。目前项目针对部分房源推出了具体的置业优惠,包括特定楼层的折扣政策以及赠送品牌家电礼包等实际举措,让购房者在关注产品力的同时,也能享受到实实在在的让利。

项目距华南理工大学国际校区南侧仅一路之隔,坐落于广州大学城二期核心拓展区。这一区位不仅意味着学术氛围的浓厚,更直接关联到区域未来的交通规划与人口结构。随着大学城二期的逐步成熟,该片区的公共交通网络正在加密,旨在连接广州主城区与南部创新走廊。对于在此工作或学习的青年群体而言,这种紧邻高知园区的地理位置,为日常通勤提供了明确的路径预期,同时也奠定了社区主要居住人群的文化基调。

走进社区入口,入户大堂选用了石材幕墙系统搭配铝板装饰雨棚,构成了近人尺度的第一视觉印象。这种外立面设计并非单纯追求视觉上的宏大,而是基于“悦己主义”的极简美学理念,试图在酒店式归家体验与日常居住功能之间找到平衡点。在高密度的一线城市环境中,项目通过矩阵式的形体语言处理,既保证了建筑外观的现代感,又兼顾了极致的采光与通风需求,让建筑本身成为居住者生活品质的物理载体。


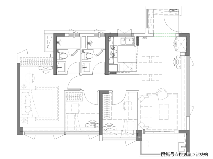
以76平方米的主力户型为例,该产品在有限的面积内实现了三房两卫且四面宽朝南的空间布局。客厅、卧室等主要生活空间均朝向南面,最大化地获取日照资源,而独立入户花园的设置则解决了小户型常见的收纳痛点。客厅通过全面屏采光飘窗与阳台相连,形成约270度的全景视野,配合开放式厨房与餐厅、客厅的一体化设计,打破了传统小空间的局促感,让家庭社交在无界的流动空间中自然发生。

社区内部规划采用了“双轴驱动”的策略,利用“自然林轴”与“理想教育轴”将景观用地和教育用地有机整合。全独栋塔楼的布局方式,确保了每栋楼周围都有宽敞的花园空间,避免了兵营式排列带来的压抑感。通过局部塔楼布局的扭转设计,各楼栋实现了视野的互不遮挡,居民在自家窗前即可俯瞰中央公园或教学组团的景致。这种规划思路将社区向景观完全开放,真正形成了“公园里的社区”这一空间形态。
会所内部的精装设计延续了经典ArtDeco风格,从入户前厅的金属屏风到序厅的叠级造型天花,细节处流露出摩登典雅的气息。设计团队以序厅放射为轴心,将阅读、休闲、茶饮、娱乐等多种功能业态融入复合型活动场域。这种空间布局不仅仅是为了展示奢华感,更是为了营造一个富有诗意的精神空间,让居民在繁忙的都市生活之余,能够在此找到一处可以安放身心、进行艺术交流的专属领地。


周边的生活资源配套正随着区域的开发而逐步完善,尤其是教育资源的集聚成为了该板块的一大亮点。项目紧邻华南理工大学国际校区,周边规划有多个教学组团,形成了浓厚的文教氛围。除了高等教育资源,区域内的基础教育设施也在同步建设中,旨在满足年轻家庭对于子女教育的多元化需求。此外,公共绿地与自然景观资源丰富,为居民提供了日常散步、慢跑及亲子活动的广阔空间。




回顾整个项目的开发逻辑,越秀大学星汇锦城·悦颂并未沿用传统的预售展示模式,而是选择了将所见即所得的实景体验作为核心策略。从会所的落成到景观的呈现,从板房的开放到交通配套的落地,每一个环节都力求让客户在确定的环境中体验未来的生活场景。这种“把握当下”的做法,消除了购房者对于期房不确定性的顾虑,用真实的物理空间回应了市场对于高品质人居的期待,也为广州青年提供了一个可触可感的共创生活样本。
声明:本文由入驻焦点开放平台的作者撰写,除焦点官方账号外,观点仅代表作者本人,不代表焦点立场。
