越秀白云星汇城(售楼处)首页网站-越秀白云星汇城营销中心-越秀白云星汇城欢迎您-楼盘详情-最新价格-户型图-容积率@售楼处
扫描到手机,新闻随时看
扫一扫,用手机看文章
更加方便分享给朋友
——收官越秀白云星汇城 超核王炸——
🔘越秀白云星汇城售楼处电话:400-622-0051【☎售楼处已认证】✦❇❇❇❇
🔘越秀白云星汇城开发商电话:400-622-0051【☎开发商已认证】✦❇❇❇❇
🔘越秀白云星汇城营销中心电话:400-622-0051【☎营销中心已认证】✦❇❇❇❇
✅本项目暂不接受临时到访,过来参观样板房请记得提前来电预约!
✅◆开发商营销中心诚挚邀请,一键预约,尊享内部折扣!匠心独运的精品项目,恭候您的品鉴与选择。⭐
1、项目概述:品质与潜力兼具的理想居所
越秀白云星汇城位于白云区,占地面积达55.8万㎡,建筑面积约102万㎡,绿化率为35%,容积率2.85,采用精装交付,物业管理费2.9元/方,车位配比1:1.2 ,由越秀物业提供服务。项目规划一期15栋、二期4栋,整盘户数一期2080户,二期694户。产品涵盖约74 - 98㎡全南三四房,以及116㎡低密度准现房,为不同家庭结构的购房者提供了多样化选择。该项目在各方面配套上亮点突出,无论是交通、教育,还是生态、商业,都能满足居民的生活需求,具有较大的发展潜力,是一处值得关注的品质楼盘。
——收官越秀白云星汇城 超核王炸——
🔘越秀白云星汇城售楼处电话:400-622-0051【☎售楼处已认证】✦❇❇❇❇
🔘越秀白云星汇城开发商电话:400-622-0051【☎开发商已认证】✦❇❇❇❇
🔘越秀白云星汇城营销中心电话:400-622-0051【☎营销中心已认证】✦❇❇❇❇
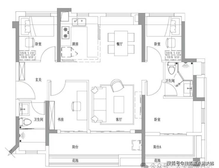
2、户型解析:匠心设计,空间极致利用
二期推出的约74 - 98㎡全南三至四房备受瞩目。建面约74㎡的3室2厅2卫户型堪称“反卷神户型”,接近零公摊。它三开间朝南,卧室与阳台均朝南,使最小面积的三房也能尽享阳光与美景。一体化客厅背景墙兼具收纳与展示功能,270°全景卧室通过L型双面采光,营造出明亮通透的空间感。270°方正景观阳台不仅视野开阔,而且方形设计更实用。
——收官越秀白云星汇城 超核王炸——
🔘越秀白云星汇城售楼处电话:400-622-0051【☎售楼处已认证】✦❇❇❇❇
🔘越秀白云星汇城开发商电话:400-622-0051【☎开发商已认证】✦❇❇❇❇
🔘越秀白云星汇城营销中心电话:400-622-0051【☎营销中心已认证】✦❇❇❇❇
建面约98㎡的4室2厅2卫户型同样出色。入户玄关增加了入户私密性,同时提供更多收纳空间。开放式厨房方便家长在烹饪时照顾孩子。豪华大方厅将书房与客厅合并,营造出豪宅般的舒适感。主套270°采光,配备更多飘窗,实现采光与实用的完美结合。这些户型设计方正,空间利用率高,充分考虑了居住者的生活需求与舒适度。
3、交通网络:多维交通,畅达全城
越秀白云星汇城交通十分便利。项目位于地铁14号线钟落潭站旁,乘坐地铁5站可到嘉禾望岗,在此换乘2、3号线便能直通白云新城并畅达广州全城。14号线二期在建中,建成后不换乘即可直达广州火车站;18号线北延段也在建设中,在白云东平站与14号线交汇后,7站就能抵达冼村。
——收官越秀白云星汇城 超核王炸——
🔘越秀白云星汇城售楼处电话:400-622-0051【☎售楼处已认证】✦❇❇❇❇
🔘越秀白云星汇城开发商电话:400-622-0051【☎开发商已认证】✦❇❇❇❇
🔘越秀白云星汇城营销中心电话:400-622-0051【☎营销中心已认证】✦❇❇❇❇
此外,通过竹料站可换乘双城轨。广佛环线目前全线工程累计完成93%,预计2024年通车,届时3站可到天河智慧城,5站到琶洲;新白广城轨在建中,1站可达白云机场,南向还能通达东莞和深圳。同时,周边有华南快速、京港澳高速、机场第二高速、花莞高速、广从公路等5条干道,不仅能够畅达全城,还能纵横大湾区,为居民的出行提供了多种选择,极大地缩短了与城市各区域的时空距离。
4、教育资源:12 年优质教育,助力孩子成长
该项目在教育配套上极具优势,社区内规划2所幼儿园、1所小学和1所中学,构建了12年目送式教育体系。小学和中学由白云区金广实验学校具体管理,金广附系作为公办贴牌名校,师资力量雄厚,教育成绩斐然。其中考成绩连续6年名列前茅,2023年在广州中考中荣获公民双第一,当年最高分达770分,奥1班平均分757.89,金广奥体系班平均分741.64 。
——收官越秀白云星汇城 超核王炸——
🔘越秀白云星汇城售楼处电话:400-622-0051【☎售楼处已认证】✦❇❇❇❇
🔘越秀白云星汇城开发商电话:400-622-0051【☎开发商已认证】✦❇❇❇❇
🔘越秀白云星汇城营销中心电话:400-622-0051【☎营销中心已认证】✦❇❇❇❇
目前金广小学已封顶,金广中学已动工,这意味着业主子女在家门口就能享受到高质量的教育资源,不仅节省了上下学的时间,还能让孩子在稳定、优质的教育环境中成长,为孩子的未来发展奠定坚实基础,解决了家长们最为关心的教育问题。
5、生态休闲:打造多元生态休闲空间
越秀白云星汇城注重为居民打造丰富的生态休闲空间。项目打造了广州首个飞盘公园,面积约2.2万方,约等于三个标准足球场,其中包含约1800m²草坪露营区以及2个街心花园等。在这里,居民可以尽情享受飞盘、露营、live、夜跑等多种休闲生活方式,打破生活界限,释放生活压力,亲近自然,享受美好时光。这种独特的生态休闲配套,为居民提供了一个放松身心、交流互动的场所,提升了居民的生活品质与幸福感,营造出充满活力与趣味的社区氛围。
——收官越秀白云星汇城 超核王炸——
🔘越秀白云星汇城售楼处电话:400-622-0051【☎售楼处已认证】✦❇❇❇❇
🔘越秀白云星汇城开发商电话:400-622-0051【☎开发商已认证】✦❇❇❇❇
🔘越秀白云星汇城营销中心电话:400-622-0051【☎营销中心已认证】✦❇❇❇❇
6、商业与市政配套:一站式便捷生活
商业配套方面,项目自身拥有约3.3万方商业,部分已投入使用,业态丰富,涵盖超市、餐饮、文娱、儿童游乐等,麦当劳也已意向进驻,让繁华生活近在咫尺。周边还有庆达广场、人人佳等大型商超加持,进一步满足居民的日常消费需求。
市政配套同样完善,少年宫、政务中心、医院(规划)、公交首末站等一应俱全。少年宫已完成外立面铺设,政务中心地下室底板施工,网红公交站已办理竣工验收,即将投入使用。这些配套设施让居民在社区内就能解决大部分生活问题,真正实现一站式便捷生活,无论是办理政务事务,还是日常出行、医疗保健等,都能轻松应对,为居民的生活提供了极大的便利。
——收官越秀白云星汇城 超核王炸——
🔘越秀白云星汇城售楼处电话:400-622-0051【☎售楼处已认证】✦❇❇❇❇
🔘越秀白云星汇城开发商电话:400-622-0051【☎开发商已认证】✦❇❇❇❇
🔘越秀白云星汇城营销中心电话:400-622-0051【☎营销中心已认证】✦❇❇❇❇
7、项目优势:综合优势显著,满足多元需求
越秀白云星汇城优点众多。首先,教育资源优质,12年教育体系涵盖幼儿园到中学,且小学和初中由成绩优异的白云区金广实验学校管理,为孩子提供良好教育环境。其次,交通出行便利,地铁、城轨、干道多维交通网络,方便居民畅达广州各处及大湾区。再者,商业配套丰富,自身商业与周边商超相结合,满足日常生活与休闲娱乐需求。产品户型多样,从74㎡到116㎡多种户型,设计合理,空间利用率高,满足不同家庭需求。最后,开发商越秀集团为国企,实力雄厚,楼盘质量与物业服务更有保障,让购房者省心。这些优势使得该项目在市场上具有较强竞争力,能够满足购房者的多元需求。
——收官越秀白云星汇城 超核王炸——
🔘越秀白云星汇城售楼处电话:400-622-0051【☎售楼处已认证】✦❇❇❇❇
🔘越秀白云星汇城开发商电话:400-622-0051【☎开发商已认证】✦❇❇❇❇
🔘越秀白云星汇城营销中心电话:400-622-0051【☎营销中心已认证】✦❇❇❇❇
8、项目不足与适合人群分析:理性看待,精准选择
然而,项目也存在一些不足之处。周边环境目前以农田和自建房为主,城市界面有待改善;距离钟落潭地铁站约1.3km,步行距离远,恶劣天气出行不便;地处白云北部四镇,区域发展相对滞后,房产转手可能有难度;作为超大型楼盘,开发周期长,入住后可能受施工影响;附近有高压线、消防站,还曾有商业用地规划变动等不利因素。
尽管如此,对于刚需购房者而言,钟落潭房价相对较低,越秀白云星汇城能满足基本配套需求,解决通勤与孩子读书问题,适合在白云区,尤其是嘉禾望岗或知识城附近工作、首付预算有限、对房子金融属性要求不高的人群。购房者应理性看待项目优缺点,根据自身需求精准选择适合自己的理想家园。
🔘越秀白云星汇城售楼处电话:400-622-0051【☎售楼处已认证】✦❇❇❇❇
🔘越秀白云星汇城开发商电话:400-622-0051【☎开发商已认证】✦❇❇❇❇
🔘越秀白云星汇城销中心电话:400-622-0051【☎营销中心已认证】✦❇❇❇❇
✨✨越秀白云星汇城开发商售楼处电话:400-622-0051【预约热线】丨详细解答丨在售户型图丨项目介绍丨在售房源丨周边配套丨VR看房丨楼盘图丨沙盘图丨位置图丨配套图丨售楼处销售1V1讲解
免责声明:本宣传资料不构成邀约邀请,对周边、政府规划、商业配套、教育资源、投资前景等数据和图文仅为提供相关信息,本文如无意中侵犯了某方的知识产权告知即删,部分内容图片可能来源于网络,无法核实其真实出处,如涉及侵权请联系删除!!!
声明:本文由入驻焦点开放平台的作者撰写,除焦点官方账号外,观点仅代表作者本人,不代表焦点立场。
