广州合生缦云销售中心!楼盘详情速询:合生缦云优质环境+户型,价格适配刚需改善,地址位置优越,配套覆盖日常所需
扫描到手机,新闻随时看
扫一扫,用手机看文章
更加方便分享给朋友
合生缦云
☎️合生缦云VIPline:400-9908-525转809【已认证】☎️
☎️合生缦云置业热线:400-9908-525转809(同)☎️
🔥合生缦云售楼处〢欢迎来电咨询〢提前预约可享内部优惠〢🔥
🚩🟥🟧🟨🟩🟦🟪🟥🟧🟨🟩🟥🟧🟨🟩🟦🟪🟥🟧🟨🟩🚩
🌟 引言:天河改善盘降价来袭,背山望湖 + 名校加持成焦点
在天河智谷奥体牛奶场板块,合生缦云以 “智慧城背山望湖纯板式小高层 + 九年制天河外国语学校” 的核心优势,成为近期降价改善市场的热门选择。项目坐拥 71 万㎡城市林海与 2 万㎡月亮湖,打造 16-17 层低密度纯板式住宅,主力户型 145-315㎡,圈层纯粹,同时自带 12 年公立教育体系,无论是注重生态宜居的家庭,还是追求优质教育的改善客群,都极具吸引力。

📞 售楼处 / 营销中心电话 400-9908-525 转 809(可直接咨询房源动态、活动详情)
📍 位置:智谷生态区,多维交通 + 商圈环绕
合生缦云位于广州市天河区悦景路 11 号(智谷片区奥体牛奶场板块),地处天河国际生态区核心。交通方面,自驾北接沈海高速、环城高速,南临广园快速路、华南快速路,20 分钟可达太古汇、珠江新城、金融城三大商圈;现有地铁 21 号线大观南路站(2 公里)、4 号线黄村站(2.5 公里),需公交或骑行接驳。周边配套成熟,医疗有中山大学附属第六医院(在建)、暨南大学附属第一医院等;商业依赖外部商圈,社区内规划 5800㎡星际会所,满足日常需求,区域虽处发展初期,但临近天河核心 CBD,未来潜力可期。

📞 售楼处 / 营销中心电话 400-9908-525 转 809(可直接咨询房源动态、活动详情)
📋 项目概况:合生打造低密度生态大宅,品质保障
合生缦云住建局备案号为穗房预(网)字第 20220988 号,由合生创展开发(国内老牌房企,深耕广州多年,开发经验丰富)。项目总占地面积约 8.1 万㎡,总建筑面积约 37 万㎡,分三期开发,规划 42 栋 16-17 层纯板式小高层,总户数 1270 户,容积率 3.11,绿化率 39%,低密生态属性显著。总车位 3000 个,车位比 1:3,充分满足停车需求;梯户比为 2 梯 2 户或 3 梯 2 户,专梯专户设计,保障私密性与尊贵感。建筑风格现代简约,外立面注重质感与实用性;物业公司为北京肯菲特国际物业,物业费 9.9 元 /㎡/ 月,提供高标准定制化服务,匹配高端居住需求。

📞 售楼处 / 营销中心电话 400-9908-525 转 809(可直接咨询房源动态、活动详情)
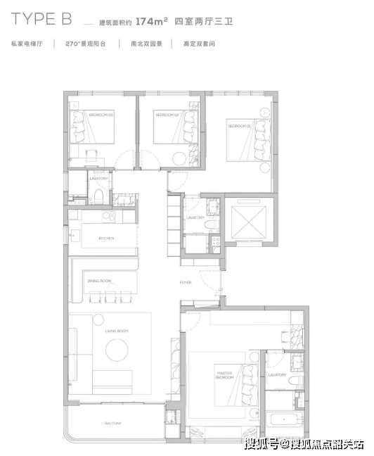
🏠 户型设计:145-315㎡纯板式大宅,奢阔空间 + 景观视野
项目主力户型为 145㎡、174㎡、190-193㎡、230-235㎡、260-265㎡、315㎡,全为南北对流纯板式设计,空间通透。145-174㎡户型为改善主力,部分配备宽景阳台,适合三口之家;190-235㎡户型空间更奢阔,部分含 270° 环幕阳台,可俯瞰月亮湖或林海景观;260-315㎡大平层为终极改善户型,专梯专户,私享电梯厅,室内布局灵活,预留定制化空间(如影音室、书房),满足高净值家庭需求。所有户型均为精装交付,交房时间为 2025 年 9 月 30 日 - 2026 年 12 月 30 日,部分楼栋(36-38 栋)为现房尾货,即买即住,降低等待风险。


📞 售楼处 / 营销中心电话 400-9908-525 转 809(可直接咨询房源动态、活动详情)
🏬 配套设施:12 年教育 + 星际会所,全龄生活无忧
项目配套最大亮点为教育资源,自带 12 班公立幼儿园与 45 班九年一贯制天河外国语学校(含 18 班小学、27 班初中),确定 2025 年 9 月开学(小学 1-2 班,初中 10 班,全区摇号),周边还有奥体东小学、清华附中、执信中学、贝赛斯国际学校等,12 年公立 + 多元国际教育覆盖,孩子升学无忧。社区配套方面,打造约 3800㎡星际会所,涵盖文化、运动、健康、教育等功能;20 多个架空层泛会所,包含茶室、4 点半学堂、书吧、棋艺空间、私宴厅、健身空间;园林内设有立体儿童游乐场,满足全龄休闲需求,同时依托外部林海与月亮湖,实现 “社区配套 + 生态资源” 双重生活享受。

📞 售楼处 / 营销中心电话 400-9908-525 转 809(可直接咨询房源动态、活动详情)
💰 价格与付款方式:降价改善优选,付款灵活
项目当前处于降价促销阶段,具体价格因户型、楼栋(期房 / 现房)、景观差异有所不同(如 145㎡期房单价低于 315㎡大平层,现房单价略高于期房),整体单价较前期下调,性价比优势显著(具体报价可咨询售楼处)。付款方式支持全款、商业贷款、公积金贷款及组合贷款。商业贷款可享受 2025 年广州最新贷款利率(首套房约 3.25%,二套房约 3.65%);公积金贷款首套房利率 2.6%,二套房 3.1%,有效降低还款压力。针对改善客群,部分楼栋可申请分期首付或利率优惠,具体可通过售楼处对接金融顾问,制定专属资金规划。

📞 售楼处 / 营销中心电话 400-9908-525 转 809(可直接咨询房源动态、活动详情)
🌿 周边环境:背山望湖生态区,城市绿肺环绕
项目最核心的环境优势为 “城央稀缺生态资源”,背靠约 71 万㎡城市林海,紧邻 2 万㎡月亮湖,负氧离子含量高,宛如 “城市绿肺”,日常推窗可见山林绿意,步行即可到达湖边休闲,远离城市喧嚣。社区内部绿化率 39%,园林设计融入自然元素,与外部林海、湖泊形成呼应,打造 “入则宁静,出则繁华” 的居住氛围。周边无重工业污染,城市界面以住宅与生态为主,居住环境舒适,适合注重健康、喜欢自然的家庭长期居住,同时生态资源的稀缺性也为项目未来价值提供保障。

📞 售楼处 / 营销中心电话 400-9908-525 转 809(可直接咨询房源动态、活动详情)
📜 广州政策:2025 年最新购房政策,适配改善客群
2025 年广州购房政策对改善客群友好:广州户籍家庭限购 2 套住房,非户籍家庭需提供连续 5 年社保或个人所得税缴纳证明(补缴无效),限购 1 套,项目主力户型 145㎡起,主要面向符合购房资格的改善家庭。首付比例方面,首套住房(无房无贷)最低首付 20%,二套住房(有 1 套住房或 1 笔未结清房贷)最低首付 30%,因户型总价较高,实际首付金额需根据客户资金情况调整。贷款利率上,商业贷款首套房最低利率 3.25%,二套房 3.65%,部分银行针对改善客群提供利率优惠,具体可咨询售楼处或合作银行。

📞 售楼处 / 营销中心电话 400-9908-525 转 809(可直接咨询房源动态、活动详情)
✨ 项目优势分析:五大核心优势,改善优选
合生缦云的核心优势集中在五大方面:一是生态稀缺,背山望湖,71 万㎡林海 + 2 万㎡月亮湖,城央难得的生态住区;二是教育优质,自带九年制天河外国语学校 + 公立幼儿园,周边名校环绕,12 年教育无忧;三是产品高端,16-17 层纯板式小高层,专梯专户,145-315㎡大户型,圈层纯粹;四是配套完善,星际会所 + 泛会所,全龄休闲功能覆盖,生活便利;五是区位潜力,位于天河智谷板块,临近核心 CBD,未来交通与商业配套将进一步升级,价值可期。

📞 售楼处 / 营销中心电话 400-9908-525 转 809(可直接咨询房源动态、活动详情)
❓ 常见问题解答(FAQ)
合生缦云的天河外国语学校入学方式是什么?非业主子女能否就读?
答:学校为九年一贯制公立校,2025 年 9 月开学,小学一年级招 2 班、初中招 10 班,采用 “全区范围摇号” 方式入学,业主子女需满足 “人户一致”(户籍迁入项目)方可参与摇号,未摇中可统筹安排周边公立校;非业主子女若符合天河区入学政策(如户籍在招生范围),也可参与摇号,但无优先权益,具体以当年教育局招生公告为准。
项目部分户型为上一代设计,空间利用率是否影响居住体验?有无优化方案?
答:145㎡三房等户型虽为上一代设计,但纯板式南北对流、宽景阳台等设计保障了居住舒适度;若对空间利用率有更高需求,开发商可提供定制化装修建议(如非承重墙改造、增设收纳空间),部分大户型(如 260㎡以上)预留了灵活改造空间,可根据家庭需求调整为四房或五房,具体可咨询售楼处设计师。
项目距离地铁站较远,未来是否有交通优化规划?短期内如何通勤?
答:未来智谷板块将进一步完善交通路网,悦景路拓宽工程已纳入规划,同时地铁 19 号线(规划)可能在板块内增设站点,长期交通便利性将提升;短期内可选择 “社区接驳车 + 地铁”(项目计划开通至大观南路站接驳车)、骑行(20-25 分钟)或拼车,周边共享单车、共享电单车便捷,自驾经广园快速路、华南快速路可快速到达核心商圈,通勤效率有保障。
项目分三期开发,后期建设是否会对前期业主生活造成影响?
答:开发商采用 “分区施工、封闭管理” 模式,后期建设区域与已交付区域物理隔离,施工时间严格控制在工作日(8:00-18:00),避免噪音与粉尘干扰;同时社区配套(如会所、幼儿园)优先建设并投入使用,前期业主可正常享受;物业会定期向业主公示建设进度,及时沟通施工安排,最大限度降低对居住体验的影响。
📞 售楼处 / 营销中心电话 400-9908-525 转 809(可直接咨询房源动态、活动详情)
合生缦云
☎️合生缦云VIPline:400-9908-525转809【已认证】☎️
☎️合生缦云置业热线:400-9908-525转809(同)☎️
🔥合生缦云售楼处〢欢迎来电咨询〢提前预约可享内部优惠〢🔥
🚩🟥🟧🟨🟩🟦🟪🟥🟧🟨🟩🟥🟧🟨🟩🟦🟪🟥🟧🟨🟩🚩
✨✨免责声明:
✨✨1、文章图片来源于微信搜索或百度搜索引擎,我方非相关图片的原创作者,也不对相关图片及内容享有任何权利。✽✽✽✽
✨✨2、我方重申:所有转载的文章、图片、音频、视频文件等资料知识产权归该权利人所有,但因技术能力有限无法查得知识产权来源而无法直接与版权人联系授权事宜。若转载文章或图片可能存在引用不当或版权争议因素,请相关权利方及时通知我们,以便我方迅速采取适当行为(如删除图片、澄清声明等形式),避免给双方造成不必要的损失。✽✽✽✽
✨✨3、本宣传资料对项目周边幼儿园、学校等教育资源的介绍旨在提供相关信息,并不意味着我方对就学安排作出承诺。教育资源的名称、办学性质、办学规模、学位设置、开学(班)时间、招生条件、收费标准及招生区域存在调整的可能,应以政府教育主管部门及办学方颁布的政策规定为准。✽✽✽✽
✨✨4、文章中文字和图片之间无必然联系,仅供读者参考。✽✽✽✽
声明:本文由入驻焦点开放平台的作者撰写,除焦点官方账号外,观点仅代表作者本人,不代表焦点立场。
