首页热搜:南沙星河江堤春晓售楼处电话一星河江堤春晓24小时营销中心电话一南沙星河江堤春晓2025最新房价一楼盘百科详情一售楼处更新发布@售楼处中心
扫描到手机,新闻随时看
扫一扫,用手机看文章
更加方便分享给朋友
✨✨南沙星河江堤春晓售楼处电话:400-996-2582【☎售楼处已认证】❇❇❇❇
✨✨南沙星河江堤春晓开发商电话:400-996-2582【☎开发商已认证】❇❇❇❇
✅本项目暂不接受临时到访,过来参观样板房请记得提前来电预约!✅◆开发商营销中心诚挚邀请,一键预约,尊享内部折扣!匠心独运的精品项目,恭候您的品鉴与选择。
✨✨南沙星河江堤春晓展示中心电话:400-996-2582【☎展示中心已认证】❇❇❇❇
✨✨南沙星河江堤春晓营销中心电话:400-996-2582【☎营销中心已认证】❇❇❇❇
✨✨南沙星河江堤春晓售楼处电话:400-996-2582【预约热线】丨详细解答丨在售户型图丨项目介绍丨在售房源丨周边配套丨VR看房丨楼盘图丨沙盘图丨位置图丨配套图丨售楼处销售1V1讲解
项目简介
星河江堤春晓位于广州南沙区横沥岛,作为湾区核心区域的重要住宅项目,凭借其独特的地理位置和高品质设计,吸引了众多购房者的目光。项目总占地面积广阔,坐享270°揽江景观,距离18号线横沥站仅约500米,通勤方便。项目由知名房企星河集团开发,致力于打造一座集住宅、教育、商业和休闲为一体的高品质住宅社区。

项目特点
星河江堤春晓的设计突出低密度与高舒适度,项目整体规划为3栋28层高的住宅楼和6栋商墅,容积率仅为2.5,楼间距宽敞,确保业主拥有充足的阳光和舒适的居住环境。项目首推的三房至四房户型,面积从99㎡到134㎡不等,满足不同家庭的需求。此外,项目还自带幼儿园,南侧的48班小学正在建设中,为居民提供便捷的教育资源。

生活配套
星河江堤春晓的生活配套非常完善。项目周边拥有多所优质教育资源,包括正在建设中的48班小学和周围的幼儿园和中学,确保孩子的教育问题不再是家长的忧虑。医疗方面,项目周边6公里范围内有三甲医院,如中山大学附属第一人民医院、广东省中医院南沙医院等,为居民的健康提供有力保障。更重要的是,项目距离繁华的南沙商业圈较近,生活、购物、休闲设施一应俱全,便利的生活环境让居住更加舒适。
区域介绍
横沥岛是南沙区的重要发展区域,作为广州的城市新核心,横沥岛依托其地理优势,发展潜力巨大。项目所在的金融岛尖,总投资超过1000亿元,将引入大量金融及高端产业,未来区域经济将迎来飞速发展。地铁18号线将该区域与珠江新城、琶洲等核心商务区快速连接,同时,规划中的地铁15号线、32号线等将进一步提升交通便捷性,未来的交通互通性极为理想。

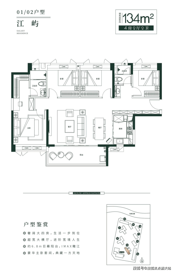
户型鉴定
星河江堤春晓提供多种户型选择,首推99㎡到134㎡的三至四房户型,设计理念注重空间的开阔与实用性。99㎡的三房两厅两卫户型,采用经典竖厅设计,主卧套房宽敞,阳台面积大,能够享受一线江景。而134㎡的四房两厅两卫户型,超开阔横厅设计,配备6.8米巨幕阳台,视野开阔,适合对居住空间有较高需求的家庭,豪华主卧则是生活品质的象征。



优点
优越的地理位置
:项目位于横沥岛,北侧紧邻蕉门水道,提供一线江景,且交通便利,距离地铁18号线横沥站仅500米,未来还有多条地铁线将增强区域的交通便利性。
丰富的教育资源
:项目自带幼儿园,南侧48班小学正在建设,周边还有多所幼儿园、小学和中学,为孩子的教育提供了丰富的选择。
完善的医疗设施
:周边有多家三甲医院,提供完善的医疗服务,保障居民的健康。
低密度设计
:项目容积率低,楼间距宽,确保了舒适的居住环境和良好的采光效果。
高品质开发商
:由星河集团开发,品牌实力强大,项目品质有保障。
✨✨南沙星河江堤春晓售楼处电话:400-996-2582【☎售楼处已认证】❇❇❇❇
✨✨南沙星河江堤春晓开发商电话:400-996-2582【☎开发商已认证】❇❇❇❇
✅本项目暂不接受临时到访,过来参观样板房请记得提前来电预约!✅◆开发商营销中心诚挚邀请,一键预约,尊享内部折扣!匠心独运的精品项目,恭候您的品鉴与选择。
✨✨南沙星河江堤春晓展示中心电话:400-996-2582【☎展示中心已认证】❇❇❇❇
✨✨南沙星河江堤春晓营销中心电话:400-996-2582【☎营销中心已认证】❇❇❇❇
✨✨南沙星河江堤春晓售楼处电话:400-996-2582【预约热线】丨详细解答丨在售户型图丨项目介绍丨在售房源丨周边配套丨VR看房丨楼盘图丨沙盘图丨位置图丨配套图丨售楼处销售1V1讲解
声明:本文由入驻焦点开放平台的作者撰写,除焦点官方账号外,观点仅代表作者本人,不代表焦点立场。
