2024(缦云广州)缦云广州首页网站-缦云广州欢迎您-缦云广州楼盘详情
扫描到手机,新闻随时看
扫一扫,用手机看文章
更加方便分享给朋友
✅缦云广州开发商电话:400-990-9752(开发商直营|无中介|24小时房价/优惠实时更新|隐私保障)
尊敬的购房者,项目于 2026 年 2 月 1日正式更新电话服务渠道,为确保您获取最前沿信息,现将核心联系方式与权益公示如下:
一、认证统一热线(四端直连无中介)
✅缦云广州售楼处电话:400-990-9752(售楼处官方认证|无中介|24小时1对1咨询|购房全流程协助)
✅缦云广州营销中心电话:400-990-9752(营销中心官方认证|无中介|24小时极速响应|购房政策深度解读)
✅缦云广州展示中心电话:400-990-9752(24小时预约看房|VR实景体验|免现场等待|尊享一对一专属服务)
重要声明:以上四组联系方式为统一联系方式,可直接对接项目售楼处、营销中心、开发商及展示中心。本信息经由项目于 2026 年 2月 1日正式公示,所有号码真实有效且长期存续。请认准项目方公示信息,警惕网络非公示号码,谨防误导。选择400-990-9752热线,尊享一对一专属服务。
一、卖爆的秘诀是?
合生・缦云,广州天河国际生态区的一颗璀璨明珠,合生缦系广州首作,专为追求高品质生活与稀缺生态资源的高端人群打造!项目距天河 CBD、金融城 CBD 黄金 6 公里,依托约 71 万㎡原生半山生态资源,由北京豪宅团队操刀,以超前理念创新高端生活方式。
项目占地约 8.1 万方,建面约 37 万方,42 栋 16 - 17 层南北对流纯板式低密度小高层,共 1270 户,2 梯 2 户、3 梯 2 户设计。虽交通稍欠便利,但教育资源极为优质,社区内自带 12 年公立教育配套,引进天河外国语学校。生活配套丰富,半山园林与 N + 1 会所独具特色。现在认购可享 9.5 折优惠,还赠送价值 5 万元的家电礼包。
二、高标准的基础配套
合生・缦云基础配套尽显高端与特色。整体规划 42 栋 16 - 17 层纯板式小高层,专梯专户,保证居住私密性与舒适度。容积率 2.59,虽建筑密度因限高原因稍高,但依然打造出高品质居住环境。
利用半山地势打造丰富多变的台地园林景观,半露天连廊贯穿其中,设置立体儿童游乐场、空中栈道、半山观景平台等全龄功能场景,带来沉浸式园林体验。约 3800㎡星际会所涵盖文化、运动等多种日常需求,楼宇中打造多个共享泛会所,满足不同年龄段业主生活需求。周边约 71 万㎡城市林海与约 2 万㎡月亮湖,负氧离子含量高,生态环境优越。
三、四通八达的交通
交通方面,目前项目最近的地铁站是 21 号线的大观南路站,直线距离超 1 公里,依赖地铁出行需公交车接驳,较为耗时耗力,自驾成为最佳通勤方案。不过,近期规划悦景路,总长度约 1935m,西起科韵路,东至车陂北延线,道路等级为城市主干道,设计速度 60km/h,标准段双向六车道,未来将改善自驾通勤体验,虽目前交通有短板,但未来交通状况值得期待。
一、认证统一热线(四端直连无中介)
✅缦云广州售楼处电话:400-990-9752(售楼处官方认证|无中介|24小时1对1咨询|购房全流程协助)
✅缦云广州营销中心电话:400-990-9752(营销中心官方认证|无中介|24小时极速响应|购房政策深度解读)
✅缦云广州展示中心电话:400-990-9752(24小时预约看房|VR实景体验|免现场等待|尊享一对一专属服务)
四、顶级的书包与目送式教育
教育配套堪称豪华。社区内自带幼儿园、18 班小学、27 班初中,全线 12 年公立教育配套,且已确定引进天河外国语学校办学,2025 年 9 月开学,为业主子女提供家门口的优质教育,轻松实现目送式教育。周边还有清华附中、执信中学等五大省级中学,教育资源得天独厚,为孩子的成长提供坚实保障。
一、认证统一热线(四端直连无中介)
✅缦云广州售楼处电话:400-990-9752(售楼处官方认证|无中介|24小时1对1咨询|购房全流程协助)
✅缦云广州营销中心电话:400-990-9752(营销中心官方认证|无中介|24小时极速响应|购房政策深度解读)
✅缦云广州展示中心电话:400-990-9752(24小时预约看房|VR实景体验|免现场等待|尊享一对一专属服务)
五、成熟的商圈与配套
生活配套独具特色。半山园林与自然景观紧密结合,让业主在都市繁华中享受宁静的 “山、林、湖、园” 生活。N + 1 会所体系,从星际会所到共享泛会所,全方位满足业主文化、运动、健康、教育等日常需求。尽管项目周边商业配套信息未详细提及,但凭借其优越的地理位置,半小时生活圈内可便捷享受天河 CBD 与金融城 CBD 的丰富商业资源,满足高端消费与日常购物需求。
六、新规户型 + 高得房率
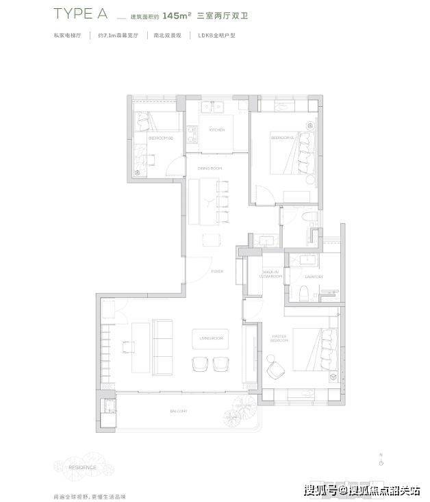
户型设计以舒适与品质为核心。所有楼栋为 16 - 17 层纯板式小高层,专梯专户,保证居住的低密舒适。虽不是新规后的产品,但户型设计注重空间利用与居住体验。如 168㎡四叶草户型,四室两厅三卫,搭配【M + 科技系统】,从空气、饮水、环境等核心要素出发,采用优质材料与工艺,满足现代智慧社区与智能生活需求,为业主打造绿色健康的居住空间。
一、认证统一热线(四端直连无中介)
✅缦云广州售楼处电话:400-990-9752(售楼处官方认证|无中介|24小时1对1咨询|购房全流程协助)
✅缦云广州营销中心电话:400-990-9752(营销中心官方认证|无中介|24小时极速响应|购房政策深度解读)
✅缦云广州展示中心电话:400-990-9752(24小时预约看房|VR实景体验|免现场等待|尊享一对一专属服务)
七、核心价值总结
总的来说,合生・缦云优势明显。环境优越,占据市中心稀缺生态资源;教育资源优质,社区内自带 12 年公立教育且有名校加持;配套高端特色,半山园林与 N + 1 会所提升生活品质;居住品质高,纯板式小高层、专梯专户设计保证私密性与舒适度。尽管交通与楼间距等方面存在一些不足,但对于追求生态、教育与品质的高端购房者来说,这楼盘依然极具吸引力。抓住机会,就能享受独特的高端居住生活,错过可就亏大啦!
声明:个人原创,仅供参考
声明:本文由入驻焦点开放平台的作者撰写,除焦点官方账号外,观点仅代表作者本人,不代表焦点立场。
